The UK's Largest Customer Review Website for the Property Industry
The UK's Largest Customer Review Website for the Property Industry
Back to Property Listings
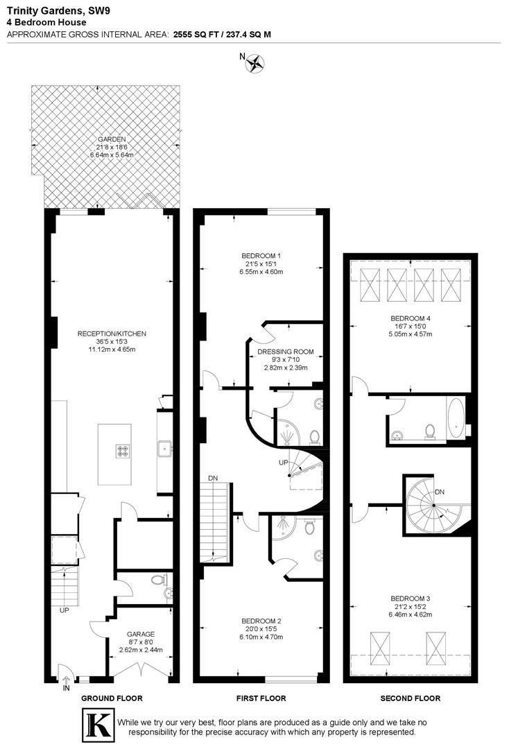
Trinity Gardens, SW9
Keating Estates are delighted to present to market this striking four double bedroom end-of-terrace house with a private garage, offering over 2,500 square feet. Situated on the desirable Trinity Gardens, with a garden square and local pub, occupying the historic site of the legendary Choice FM.
Full Description - Keating Estates are delighted to present to market this striking four double bedroom, three bathroom end-of-terrace contemporary house with a private garage, offering over 2,500 square feet of versatile living space. Situated on the desirable Trinity Gardens, right in the heart of Brixton, this sizeable home combines architectural interest with modern design, occupying the historic site of the legendary Choice FM radio station, commemorated with a blue heritage plaque on the exterior. Tucked away on a peaceful one-way cul-de-sac with a leafy garden square, yet moments from the vibrancy of Brixton, this is an exceptionally rare opportunity.
The vast heart of the home is the showstopping open-plan reception kitchen, spanning over eleven metres in length. This cavernous space is designed for both entertaining and everyday family life, enhanced by soaring ceilings and almost a full wall of glass flooding the room with natural light. Engineered wooden flooring flows seamlessly from the kitchen into the living area, creating a warm yet contemporary atmosphere. The sleek, glossy kitchen cabinetry is arranged down both sides, while a stylish island with breakfast bar takes centre stage, perfect for casual dining or social gatherings. A striking gold mirrored splashback adds a touch of luxury, and a large walk-in pantry provides ample additional storage. The living space is a delight, bathed in sunlight from two elevated windows, a floor-level picture window and wide glass doors which open directly onto the garden.
The garden itself is designed for low-maintenance enjoyment, offering an inviting outdoor retreat ideal for alfresco dining or relaxing in the warmer months. Laid to paving and surrounded by mature greenery it is ready to use the moment the weather permits.
Completing the ground floor are two handy hallway cupboards, a convenient downstairs WC and direct access into the integrated garage, a real rarity for Brixton.
The first floor hosts two generous double bedrooms, each with its own en-suite. One of these bedrooms also boasts a walk-in dressing room, offering an added sense of luxury and practicality. A spiral staircase rises to the top floor, forming a striking architectural feature at the centre of the home.
The second floor is arranged with two further sizeable double bedrooms, both enjoying lofty ceilings and a serene, airy ambience. Between them lies the family bathroom, elegantly finished to mirror the two en-suites with white marbled tiling, a bathtub with overhead shower and soft floor lighting, perfect for creating a relaxing mood.
The layout of this home ensures that every bedroom is well separated from the others, offering a sense of privacy and flexibility. This thoughtful arrangement makes the property perfectly suited to families, couples requiring additional rooms, or those wishing to accommodate tenants.
Trinity Gardens is one of Brixton's most desirable addresses, a charming one-way cul-de-sac set around a pretty garden square with its own friendly local pub. A stone's throw from the restaurants, bars and cafés that make up the buzzing atmosphere of central Brixton and Acre Lane, whilst Brixton Village and Pop Brixton are also on the doorstep. For the day-to-day conveniences, there is a large supermarket is just a minute from your front door. The property is only a six-minute walk to Brixton tube station, first stop on the Victoria Line and running 24hrs at the weekend- arguably London's favourite Underground line. With London Victoria under 15 minutes' door-to-door, and The City only twenty minutes away, this is a great property for anyone looking to considerably reduce their commute. In the other direction Clapham High Street and Abbeville Village are a pleasant stroll along Acre Lane, which itself boasts a multitude of shops, safes and eateries including the insta-famous Aries Bakery. The green open spaces of Brockwell Park, its 1930s Lido and Clapham Common are both also within pleasant strolling distances.
This exceptional home offers a rare balance of history, space and modern comfort, set in a truly central yet tucked-away Brixton location.
Freehold.

Agent Statistics (Based on 1262 Reviews) :