The UK's Largest Customer Review Website for the Property Industry
The UK's Largest Customer Review Website for the Property Industry
Back to Property Listings
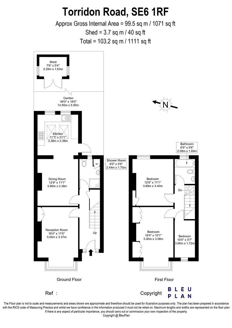
Torridon Road, London
Situated within the heart of the highly sought after 'Corbett Estate' is this stunning three bedroom, extended , freehold, Victorian family home. At close to 1100 sq ft of internal space, the property also benefits from a large, mature, landscaped rear garden.
The downstairs features a spacious entrance/hallway which leads to a good-sized reception room, a chic downstairs bathroom, a second reception/dining room and a large rear extension which houses the kitchen. Upstairs there is a family bathroom, two large double bedrooms (both with built-in storage) and a single bedroom, currently being used as a child's nursery. The property has recently had the front brickwork re-pointed and cleaned and also benefits from off-street parking in the form of its own private front driveway.
Torridon Road is a popular and sought after residential road in the heart of the Corbett Estate on the Catford/Hither Green borders. The property is served by several bus routes in the immediate vicinity, as well as being a short walk to either Hither Green or Bellingham train stations, both serving different lines into the City of London.
Please Note - A member of the Douglas Pryce team owns this house and has an interest in this property.

Agent Statistics (Based on 23 Reviews) :