The UK's Largest Customer Review Website for the Property Industry
The UK's Largest Customer Review Website for the Property Industry
Back to Property Listings
Suffolk Close, Ely
Cheffins are delighted to offer to the market this 4 bedroom detached family home situated in a popular established residential location within the City of Ely.
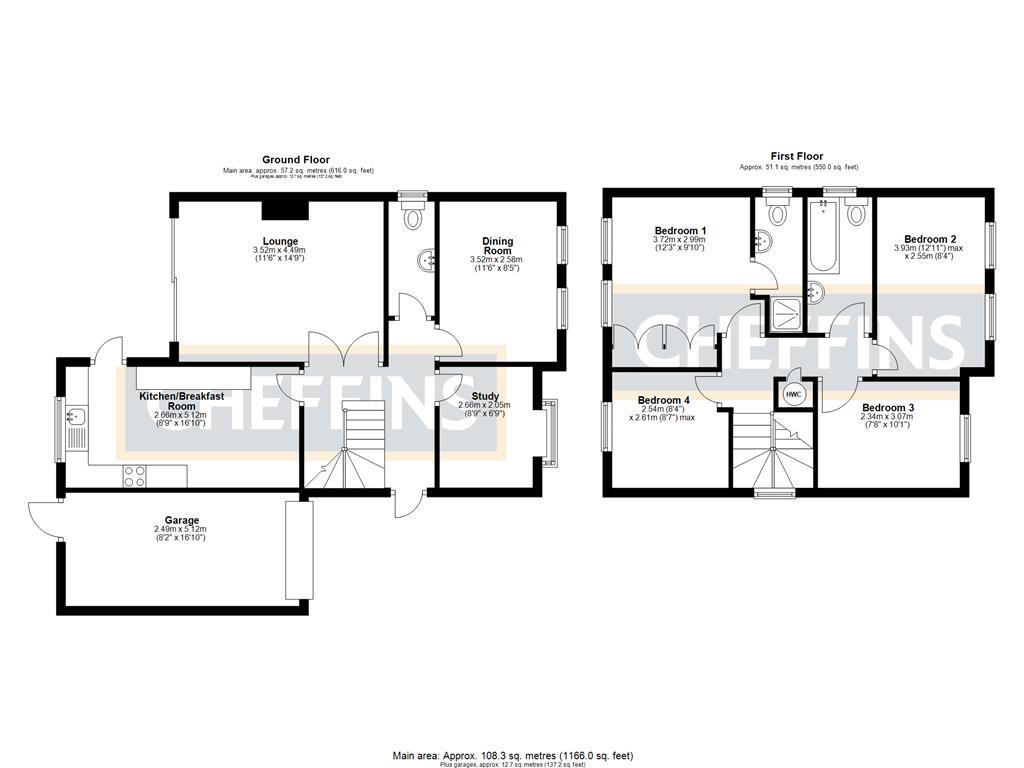
The property comprises of entrance hall, cloakroom, dining room, lounge with doors leading into the garden, study and kitchen/breakfast room, as well as 4 bedrooms (bedroom 1 benefitting from an ensuite shower room) plus a family bathroom completing the accommodation.
Outside the property is a small front garden, a driveway providing off road parking for 2 cars and leading up to a single garage, whilst the rear offers a mainly laid to lawn enclosed garden with a paved patio.
The property benefits from being offered for sale with no upward chain and is available to view by appointment.
Entrance Hall - With door to side, stairs leading to the first floor, under stairs cupboard, radiator.
Cloakroom - Fitted with a 2-piece suite comprising low level WC and pedestal wash hand basin, window to side.
Study - With window to front, radiator
Dining Room - With 2 windows to front, radiator.
Lounge - With patio doors to rear leading into the garden, gas fireplace, radiator.
Kitchen / Breakfast Room - Fitted with a range of base and wall units, cupboards and drawers with work surfaces over, single oven, 4-ring gas hob with extractor hood over, stainless steel sink with mixer tap, plumbing for washing machine, plumbing for dishwasher, window to rear, radiator.
First Floor Landing - With airing cupboard housing hot water cylinder and access to loft
Bedroom 1 - With 2 windows to rear, fitted wardrobes, radiator.
Ensuite - Fitted with 3-piece suite comprising low level WC, pedestal wash hand basin and shower cubicle, window to side, radiator, extractor fan.
Bedroom 2 - With 2 windows to front, radiator>
Bedroom 3 - With window to front, radiator.
Bedroom 4 - With window to rear, radiator.
Bathroom - Fitted with 3-piece suite comprising low level WC, pedestal wash hand basin, panelled bath with shower over, radiator, extractor fan, window to side.
Outside - To the front of the property a driveway provides off road parking for 2 cars and leads to a single garage. The garage has power and light connected, an up and over door, door to the rear leading into the garden, eaves storage and a wall mounted gas boiler. The rear garden is mainly laid to lawn with mature shrubs and trees to borders, paved patio and gated access to the front.
Viewing Arrangements - Strictly by appointment with the Agents.

Agent Statistics (Based on 1530 Reviews) :