The UK's Largest Customer Review Website for the Property Industry
The UK's Largest Customer Review Website for the Property Industry
Back to Property Listings
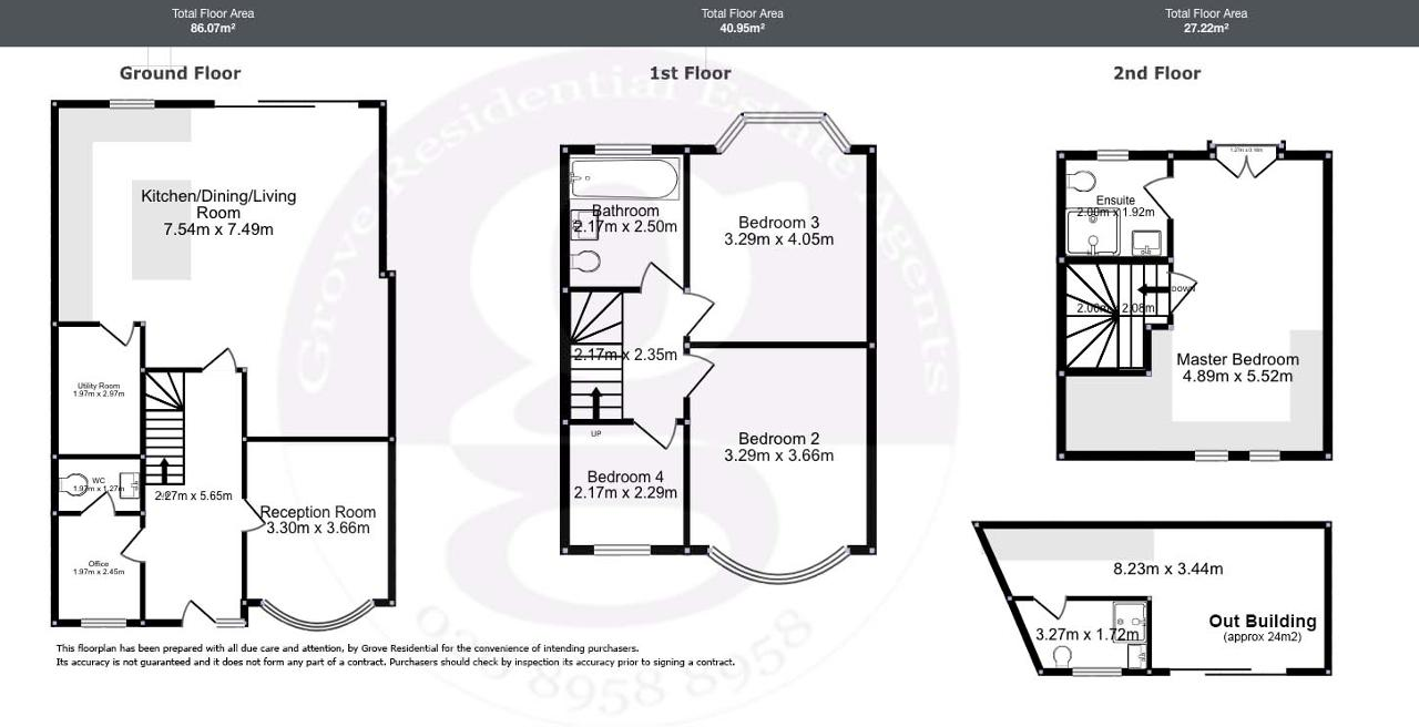
Stoneyfields Lane, Edgware, Middlesex, HA8 9SW
Council tax band: E
Presented in immaculate condition throughout, is this extended 4 bedroom 2 bathroom semi detached family home. Located on Stoneyfields Lane within close proximity to Mill Hill Broadway Thameslink and Edgware Station. The property boasts a beautiful open plan kitchen/dining room, with a separate utility room. Underfloor heating throughout downstairs. Air conditioning throughout. Bespoke TV media wall as well as fitted cupboards to the master bedroom. Brick built outbuilding comprising living space and shower room. To avoid missing out on this superb family home call sole agents Grove Residential!

This property is marketed by

Grove Residential (Edgware) - Edgware, Edgware, HA8
4.9/5 Rating
(208) reviews
Agent Statistics (Based on 208 Reviews) :