The UK's Largest Customer Review Website for the Property Industry
The UK's Largest Customer Review Website for the Property Industry
Back to Property Listings
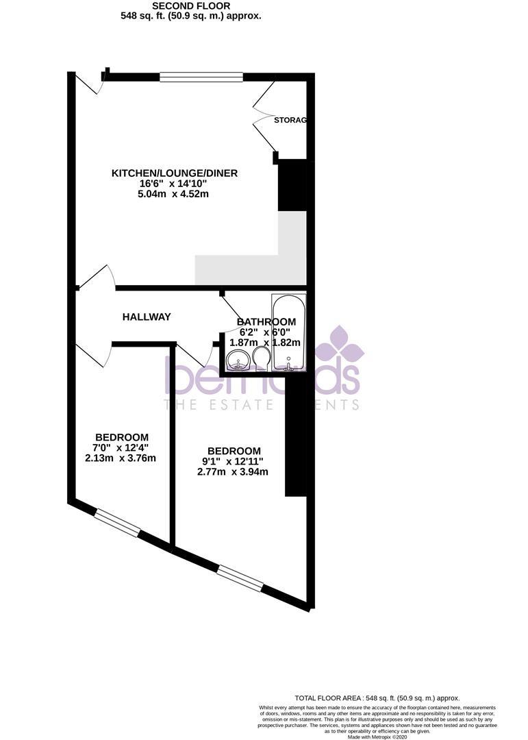
Stansted Road, Southsea
Nestled on Stansted Road in the vibrant area of Southsea, this charming two-bedroom flat conversion offers a delightful living space that has been newly decorated to a high standard. The property features a well-proportioned reception room, perfect for relaxing or entertaining guests.
With two comfortable bedrooms, this apartment is ideal for small families, couples, or individuals seeking a bit more space. The bathroom is conveniently located, ensuring ease of access for all residents.
One of the standout features of this property is its prime location. Situated close to Fratton Station, commuting to nearby areas is both easy and efficient, making it a great choice for those who travel regularly. The lively atmosphere of Southsea, with its array of shops, cafes, and parks, is just a stone's throw away, providing a wonderful blend of convenience and leisure.
This flat is offered unfurnished, allowing you the freedom to personalise the space to your taste and style. Don't miss the chance to make this lovely flat your new home.
Tenant Fees Act 2019 - As well as paying the rent, you may also be required to make the following permitted payments.
For properties in England, the Tenant Fees Act 2019 means that in addition to rent, lettings agents can only charge tenants (or anyone acting on the tenant's behalf) the following permitted payments:
· Holding deposits (a maximum of 1 week's rent);
· Deposits (a maximum deposit of 5 weeks' rent for annual rent below £50,000, or 6 weeks' rent for annual rental of £50,000 and above);
· Payments to change a tenancy agreement eg. change of sharer (capped at £50 or, if higher, any reasonable costs);
· Payments associated with early termination of a tenancy (capped at the landlord's loss or the agent's reasonably incurred costs);
· Where required, utilities (electricity, gas or other fuel, water, sewerage), communication services (telephone, internet, cable/satellite television), TV licence;
· Council tax (payable to the billing authority);
· Interest payments for the late payment of rent (up to 3% above Bank of England's annual percentage rate);
· Reasonable costs for replacement of lost keys or other security devices;
· Contractual damages in the event of the tenant's default of a tenancy agreement; and
· Any other permitted payments under the Tenant Fees Act 2019 and regulations applicable at the relevant time.
Right To Rent - Each applicant will be subject to the right to rent checks. This is a government requirement since February 2016. We are required to check and take a copy of the original version of acceptable documentation in order to adhere to the Right to rent checks. This will be carried out at referencing stage. Please speak to a member of staff for acceptable Identification.
Council Tax Band A -

This property is marketed by

Bernards Estate Agents - Southsea - Portsmouth, Southsea, PO5
4.8/5 Rating
(1190) reviews
Agent Statistics (Based on 1190 Reviews) :