The UK's Largest Customer Review Website for the Property Industry
The UK's Largest Customer Review Website for the Property Industry
Back to Property Listings
St. Albans Crescent, Broadheath
**** THREE BEDROOM SEMI DETACHED FAMILY HOME EXTENDED TO THE SIDE AND REAR -PERFECTLY PRESETED THROUGHOUT AND READY TO MOVE STRAIGHT INTO *** This SPACIOUS THREE bedroom home has been carefully designed and configured to provide the optimum living space. This FANTASTIC home benefits from a HUGE open plan lounge/kitchen with a bespoke Nolte fitted kitchen with integrated appliances, a family room, separate lounge, cloak room, downstairs W.C, three well proportioned bedrooms, a family bathroom and a boarded loft space ideal for storage. There is a large, low maintenance sun drenched and private rear garden with decked patio, a paved patio and outdoor dining area with pergola PLUS outdoor storage. The property is gas central heated, with the added benefit of underfloor heating in the kitchen and utility room and is double glazed throughout. This stunning home is a credit to the current owners who have finished the property to the highest possible standards throughout and comes highly recommended for viewing! Located in a popular residential area, close to excellent network links and transport links such as Navigation Metrolink and A56 plus walking distance to Broadheath Primary School, Waitrose and Altrincham town centre. Contact the office to arrange your viewing!!!
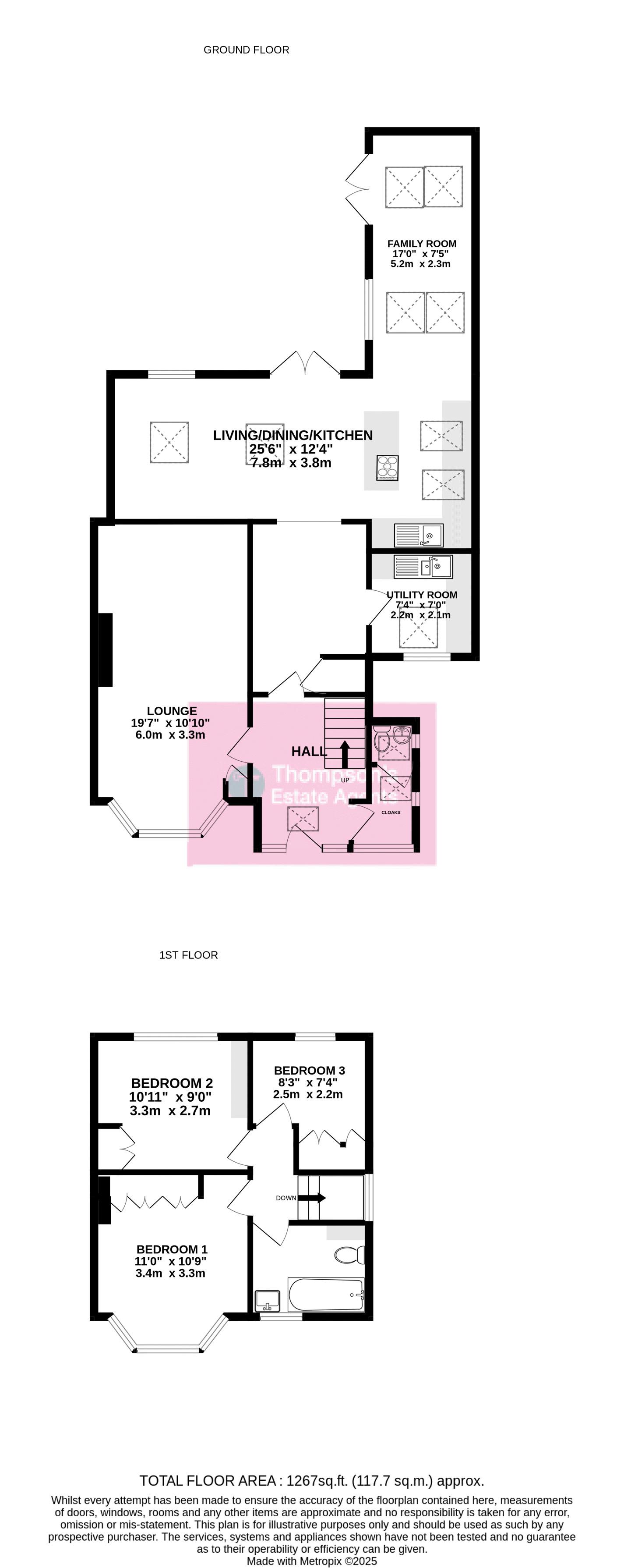
Entrance Hallway
Extended hallway with a vaulted ceiling complete with triangular transom windows and a Velux window. Composite front door, ceiling spot lights, laminate flooring, wall mounted double column radiator and carpeted stairs to the first floor with oak banister. Access to all downstairs rooms.
Lounge
Large double glazed bay window to the front, carpeted flooring, ceiling light point, television point, plug points and a living flame remote fire place recessed within the chimney breast.
Cloakroom
Part vaulted ceiling with triangular transom windows. Laminate flooring, double glazed window to the side, Velux window, ceiling spot lights, plug points and recessed cupboard.
Downstairs W.C
Laminate flooring, ceiling spot lights, double glazed window to the side, Velux window and vertical column radiator. Pedestal W.C, wall mounted handwash basin and tiled splash backs.
Open plan kitchen and living
A spacious and naturally light open plan living area with a bespoke fitted Nolte kitchen. Tiled flooring with underfloor heating, double glazed window and double patio doors to the rear and Velux windows. Ceiling spot light, wall mounted television point and plug points.
Kitchen
A fully fitted bespoke Nolte kitchen complete with island finished in Coten Steel with flare brass edging, dark granite worktops and antique mirror splash backs. Integrated Neff appliances including fridge freezer, dishwasher, induction hob, eye level electric oven, grill and plate warmer. Caple sink, with mixer tap, Elica induction hob extractor and wine cooler. Full size pull put storage unit, a range of wall and base unit cupboards with a mixture of draws and corner cupboards. Lighting under the wall units and around the island.
Family room
A great additional space with a vaulted ceiling creating a light and airy room, with four Velux windows, a double glazed window and double patio doors to the side. Laminate flooring, ceiling spot lights, wall mounted column radiator, television and plug points.
First Floor Landing
Carpeted flooring, bespoke oak banister, ceiling light point, double glazed window to the side and loft hatch access.Boarded loft with a drop down ladder and light ideal for storage.
Master bedroom
Bay fronted double glazed window to the front, carpeted flooring, ceiling light point, wall mounted radiator, plug points, television point and floor to ceiling built in fitted wardobes.
Bedroom Two
Carpeted flooring, ceiling light point, double glazed window to the rear, plug points and built in wardrobe and storage.
Bedroom 3
Carpeted flooring, ceiling light point, double glazed window to the rear, plug points and built in floor to ceiling fitted wardrobes.
Family Bathroom
A fitted three piece bathroom with a bath with shower over, handwash basin and pedestal W.C. Double glazed window to the front, ceiling spot lights, tiled flooring and tiled walls.
Externally
Externally to the front of the property there is a paved area with a raised flower bed with mature plants and shrubs surrounded by composite fencing and accessed via a gate. To the rear of the property there is a large low maintenance garden and private garden that benefits from the sun. There is a large decked patio, a further paved patio and dining area with pergola and out door storage area.
Other
Ground rent £4.00

This property is marketed by

Thompsons Estate Agents - Thompson's Estate Agents, Altrincham, WA14
5/5 Rating
(195) reviews
Agent Statistics (Based on 195 Reviews) :