The UK's Largest Customer Review Website for the Property Industry
The UK's Largest Customer Review Website for the Property Industry
Back to Property Listings
Shakespeare Street, Hove
Guide Price 550,000 to £575,000
This charming two double bedroom house on Shakespeare Street provides a delightful blend of modern comfort and classic character. Situated in the highly sought-after Poets Corner area of Hove, the property is exceptionally well maintained and presented, making it an ideal choice for those seeking a welcoming home in a convenient location.
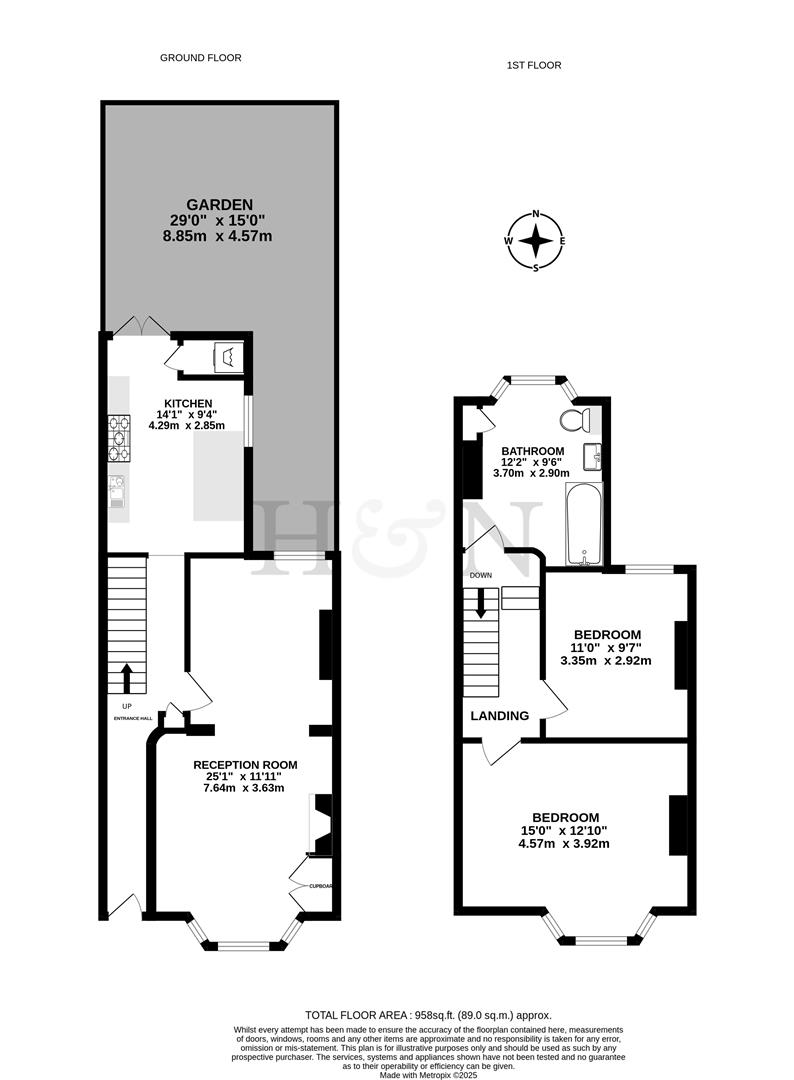
One of the standout features of this property is the private enclosed rear garden, offering a tranquil outdoor space for relaxation or entertaining guests. The house is fully double glazed and benefits from gas central heating, ensuring comfort throughout the year.
Upon entering, you are greeted by a spacious dual aspect through living room, featuring a stylish wood burner stove, creating a warm and inviting atmosphere during the cooler months. The living area seamlessly flows into a dining area and has a south facing bay window. The handcrafted kitchen has an exquisite Iroko solid wood work surface and a convenient breakfast bar, ideal for casual dining. Additionally, a utility cupboard provides ample space and provisions for a freezer and washing machine, ensuring practicality in everyday living.
The two double bedrooms are generously sized and showcase original varnished floorboards, adding a touch of elegance to the home. The spacious bathroom is equally impressive, with a bay window and featuring a shower mixer over the bath and a built-in airing cupboard, catering to all your needs. Furthermore, there is potential to extend the property, subject to obtaining the necessary consents, allowing for future enhancements to suit your lifestyle needs.
This delightful home is not only a perfect retreat but also a fantastic opportunity to enjoy the vibrant community and amenities that Hove has to offer. With its excellent condition and desirable location, this property is an ideal home for all.
Location - Shakespeare Street is situated in the popular Poets Corner district of Hove, an ideal central residential location that is in close proximity to several green spaces including Hove Park. Transport links are excellent from this location with regular bus services operating nearby, Hove mainline railway station is approximately half a mile in distance for those who need to commute, as well as easy access to the A27, A23 and other useful road links. Bus services are also close by; offering access into Brighton city centre and beyond.
Stoneham Park which has a café and local bakery, adds to this welcoming community. Portland Road is just moments away with a selection of boutique clothing shops, independent stores and a selection of cafe's. There are an abundance of local amenities including banks, supermarkets, bars and eateries, as well as numerous independent traders and coffee shops, in near by George Street and Church Road. In addition, Hove Lawns and the beach are situated just to the South and an array of well regarded schools and nurseries are within easy reach. The street itself enjoys a strong sense of community making it an excellent choice for those looking to settle in a friendly neighbourhood.
Additional Information - EPC rating: D
Internal measurement: 958 square feet / 89 square meters
Tenure: Freehold
Council tax band: C
Parking zone: R

Agent Statistics (Based on 158 Reviews) :