The UK's Largest Customer Review Website for the Property Industry
The UK's Largest Customer Review Website for the Property Industry
Back to Property Listings
Scott Drive, Exmouth
Presented in immaculate condition throughout, this attractive two bedroom semi-detached bungalow occupies a generous corner plot within a sought after residential area. The property benefits from gas central heating via a Combi boiler and uPVC double glazing, offering comfort and efficiency.
The well arranged accommodation comprises a spacious living room, a modern fitted kitchen/dining room, two double bedrooms, and a contemporary bathroom. Subject to obtaining the necessary planning consents, the loft offers potential for conversion to create additional living space if desired.
A particular highlight is the extensive corner plot garden, providing excellent outdoor space, while a garage and driveway located to the rear of the property offer convenient off-road parking.
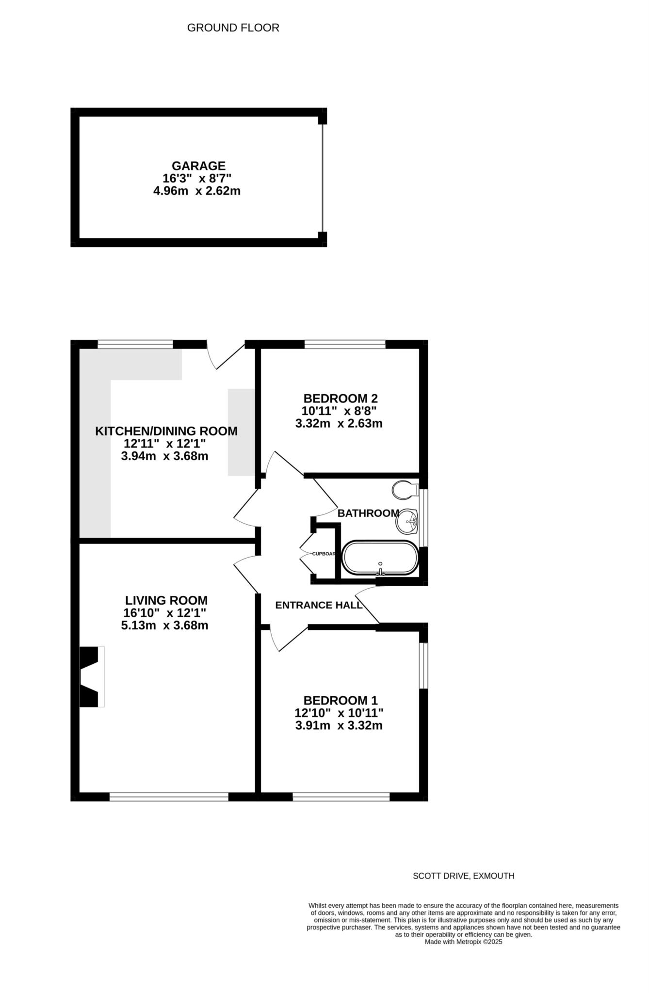
Accommodation
Step up to composite front entrance door, beneath storm porch, leading to:
Entrance Hall
Radiator. Useful linen storage cupboard. Wooden flooring. Smoke alarm. Access to insulated and part boarded loft space that, subject to gaining the correct planning permissions, could be converted to provide further living accommodation, via trap door with ladder. Within the loft is the gas fired Combi boiler that supplies the central heating and domestic hot water. Doors leading to all rooms.
Living Room - 16'10" (5.13m) x 12'11" (3.94m)
uPVC double glazed window to front. Focal point of fitted log effect gas fire within the fireplace surround including a Slate hearth. 2 radiators. Wooden flooring.
Kitchen / Dining Room - 12'11" (3.94m) x 12'0" (3.66m)
uPVC double glazed external door leading to rear leading to rear garden with uPVC double glazed window adjacent. Good range of modern fitted cupboard and drawer storage units with roll edged work surfaces and matching splashback`s. Stainless steel one and a half bowl sink with single drainer unit and mixer tap. The Rangemaster cooker in situ is available via separate negotiation, filter above. Space and plumbing for slimline dishwasher. Space and plumbing for washing machine. Further space for American style fridge / freezer etc. Radiator.
Bedroom 1 - 12'10" (3.91m) x 10'11" (3.33m)
Dual aspect having uPVC double glazed windows to front and side. Radiator. Wooden flooring.
Bedroom 2 - 10'11" (3.33m) x 8'8" (2.64m)
uPVC double glazed window to rear. Wooden flooring. Radiator.
Bathroom
Obscure uPVC double glazed window to side. Modern fitted white suite of panelled bath with thermostatically controlled shower unit over, including rainfall waterhead and splashback`s to ceiling height. Concealed cistern WC. Vanity wash hand basin. Fully tiled walls. Heated towel rail. Extractor fan.
Externally
The property enjoys attractive corner plot gardens. The front garden is laid mainly to lawn and features fruit trees, along with shrub and herbaceous beds and borders that provide year round interest and colour. A flagstone pathway runs around the perimeter of the property for easy access. Additional features include an outside power point, outside lighting, and a pathway leading to the front entrance door. The garden is enclosed by low brick wall boundaries with hedging and shrub screening for added privacy.
Rear Garden
The rear garden is level and fully enclosed, designed for low maintenance living. It includes a generous flagstone patio, ideal for outdoor dining and relaxation, along with an additional lawned area. The space is bordered by timber panel fencing and benefits from an outside power point, an outside water tap, and pedestrian access to the garage via a timber garden gate. A gas meter box is also located externally.
Garage - 16'3" (4.95m) x 8'7" (2.62m)
Up and over door to front. Obscure uPVC double glazed window to side. Power and light connected. There is a driveway to the front of the garage providing off road parking.
Tenure
The property is FREEHOLD
Services
All mains services are connected. The property is on a water meter. The Solar panels are leased and we believe the lease will transfer over to the new home owner. Council Tax Band D
Mortgage Assistance
We are pleased to recommend Meredith Morgan Taylor, who would be pleased to help no matter which estate agent you finally buy through. For a free initial chat please contact us on 01395 222350 to arrange an appointment
Your home may be repossessed if you do not keep up repayments on your mortgage
Meredith Morgan Taylor Ltd is an appointed representative of The Openwork Partnership, a trading style of Openwork Ltd which is authorised and regulated by the Financial Conduct Authority (FCA).
Directions
From our prominent Town Centre office, head down Rolle Street. Turn left at the first roundabout, then right at the next onto Marine Way, passing Exmouth Train Station. Continue onto Exeter Road, turn right into Hulham Road (Honiton/Ottery St Mary), pass Withycombe Rugby club, then take the third right into Pound Lane. The property will be found on the left hand side, clearly identified by our For Sale sign.
what3words /// trout.brief.fear
Notice
Please note we have not tested any apparatus, fixtures, fittings, or services. Interested parties must undertake their own investigation into the working order of these items. All measurements are approximate and photographs provided for guidance only.
Utilities
Electric: Mains Supply
Gas: Mains Supply
Water: Mains Supply
Sewerage: Mains Supply
Broadband: Unknown
Telephone: Unknown
Other Items
Heating: Gas Central Heating
Garden/Outside Space: Yes
Parking: Yes
Garage: Yes

Agent Statistics (Based on 739 Reviews) :