The UK's Largest Customer Review Website for the Property Industry
The UK's Largest Customer Review Website for the Property Industry
Back to Property Listings
School Cottages, Pillerton Hersey
This stylish and deceptively spacious Victorian cottage features three double bedrooms, a generous rear garden with a home office, and parking for 2 to 3 cars. Sympathetically updated and extended, it blends old-world charm with modern conveniences.
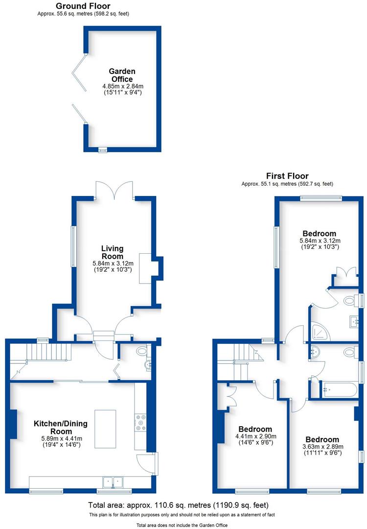
The property welcomes you with an arched porch and a stained wood front door that opens into the sitting room, with a sandstone fireplace housing a wood-burning stove and double-glazed aluminium doors providing a lovely view of the garden.
Stepping up to the hallway, you'll find a neatly appointed WC and a convenient nook under the stairs, currently set up as an office space. The kitchen/ dining room is generously sized, having previously been two separate rooms, flooded with natural light from large windows and glazed sliding doors from the hall. The kitchen features a wide range of units and an island topped with quartz, complete with a double Belfast sink. Built-in appliances include a large electric oven with an induction hob, fridge-freezer, dishwasher, wine cooler, and microwave.
Upstairs, off a central landing with exposed beams and a ceiling hatch leading to the loft space, are three characterful double bedrooms. The main bedroom overlooks the rear garden and features built-in wardrobes and a modern en-suite shower room, which includes a corner shower cubicle, washbasin, and WC. The family bathroom includes a bath with shower over.
The generous and private rear garden offers patio areas at both ends, a large lawn with borders, and a path leading to a purpose-built home office with hardwired Wi-Fi and double doors opening to the patio. At the end of the garden, there's a perfect area for a chicken coop, which leads down to a brook-an ideal spot for a vegetable garden.
At the front of the property, there is parking for one car. Additionally, just a short distance up the road, you'll find a gravel parking area where two allocated spaces are available behind a five-bar gate.
Pillerton Hersey - is a small attractive village set in the South Warwickshire countryside and contains a mixture of cottage and modern properties. The main centres of the area are Stratford upon Avon (8 miles), Coventry (24 miles) and Banbury (13 miles). The closest M40 connection is at Junction 12 at Gaydon (6 miles). There is a junior school in the neighbouring village of Ettington (2 miles) and a secondary school in the large village of Kineton (3 miles).
Additional Information - Tenure: We understand that the property is for sale Freehold.
Local Authority: Stratford on Avon District Council
Council Tax Band: E
EPC Rating: E
Mains water, drainage and electric are connected to the property. The property has oil fired central heating.
Interested parties are advised to make their own enquiries and investigations before finalising their offer to purchase.
Agents Notes - (i) All descriptions, dimensions, reference to condition and necessary permissions for use and occupation, and other details are given without responsibility and any intending buyers should not rely on them as statements of fact, but must satisfy themselves by inspection or otherwise as to the correctness of each of them.
(ii) Floorplans shown are for general guidance only. Whilst every attempt has been made to ensure that the floorplan measurements are as accurate as possible, they are for illustrative purposes only.

This property is marketed by

Sheldon Bosley Knight - Shipston On Stour, Shipston On Stour, CV36
4.8/5 Rating
(1255) reviews
Agent Statistics (Based on 1255 Reviews) :