The UK's Largest Customer Review Website for the Property Industry
The UK's Largest Customer Review Website for the Property Industry
Back to Property Listings
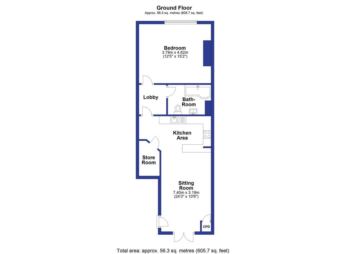
Pickard Street, Warwick
*** AVAILABLE 12th DECEMBER - DEPOSIT ALTERNATIVE AVAILABLE *** A modern, spacious, and well-proportioned ground-floor apartment, ideally located close to Warwick Town Centre, St Nicholas Park, and within easy reach of excellent local amenities.
With its own entrance and private garden space, the accommodation comprises, in brief: an open-plan living area with a modern kitchen featuring a breakfast bar, integrated fridge/freezer, and space for a washing machine. There is also a hallway storage cupboard, a sleek bathroom with a full suite including shower over bath, vanity storage, and a heated towel rail, plus a generous double bedroom to the front elevation.
With an allocated parking bay and private garden, this property is offered unfurnished.
Energy Rating: C
Council Tax Band: A
Important Information About Tenancy Costs - A holding deposit equivalent to ONE WEEKS RENT is required to secure your interest in the property, until all checks have been completed.
Upon successful referencing contracts will proceed and move in details arranged, the holding deposit will be transferred to your account with Sheldon Bosley Knight and held towards the initial first month's rent unless otherwise agreed.
In case of the following conditions, the holding deposit will be retained, in full to cover company costs incurred:
. False, inaccurate, missing, or misleading information is supplied by you
. Failure by the applicants, or their referees, guarantors (or other third parties supplied by you and relating to your application) to complete the process and sign any Tenancy agreement within 14 days from the date of application (You must ensure that you advise all contacts beforehand that they will be contacted). Should we need to extend this deadline, we will email you to confirm and, in any event, when we inform you that references are complete, the deadline for contract signing will extend by one week (i.e. total 21 days from payment of the holding deposit).
. No legal authority to rent (Failing Right to Rent Checks)
. You and/or any of your co-applicants decide to withdraw from the process after this application is submitted to us.
Online Viewings - Please be advised that due to high demand, all applicants are required to attend an in-person viewing of the property before submitting an application. Online viewings are for visual reference only and do not serve as a substitute for an in-person viewing.
Deposit Alternative Option - Instead of a traditional deposit, you will be required to pay a one-time check-in fee to Flatfair Ltd, equivalent to 28% of the rent plus VAT. This alternative significantly reduces your upfront moving costs..
Living Area - 7.4 x 3.19 (24'3" x 10'5") -
Bedroom - 4.62 x 3.79 (15'1" x 12'5") -

This property is marketed by

Sheldon Bosley Knight - Leamington Spa, Leamington Spa, CV32
5/5 Rating
(1255) reviews
Agent Statistics (Based on 1255 Reviews) :