The UK's Largest Customer Review Website for the Property Industry
The UK's Largest Customer Review Website for the Property Industry
Back to Property Listings
Norwood, Carleton, Pontefract
A SPACIOUS four bedroom detached family home with conservatory & DOUBLE GARAGE in sought after rural setting. VIEWING ESSENTIAL. EPC rating C71.
Occupying a substantial plot in a unique position, this exceptional property is a rare offering, homes of this type seldom come to the market. Situated within a highly sought after rural enclave between Carleton and Darrington, this supremely spacious four bedroom detached family home boasts three versatile reception rooms and a conservatory extension to the rear, offering generous and flexible living accommodation throughout.
With a gas fired central heating system and sealed unit double glazed windows, this expansive family home is approached from the front through a welcoming entrance hall that has a guest cloakroom off to the side. The central reception hall flows through double doors into a large main living room that has a feature fireplace and doors leading through into a conservatory taking full advantage of the views over the gardens. There is a separate dining room to the front of the house, as well as a study providing the sought after work from home space. The kitchen has an adjoining breakfast area with French doors out to the back garden and also leads through into a separate utility room that has internal access to the integral double garage. The spacious first floor has a large principal bedroom with an abundance of fitted furniture, as well as a good sized en suite shower room. There are three further double bedrooms which are all served by the bathroom that is fitted with a four piece suite. Off the second bedroom there is a large additional play room, which is suitable for a variety of different purposes. Outside, the property is approached via a large block paved driveway that provides ample off street parking and leads up to the double garage with an automated door. There is a neat front garden, laid mainly to lawn with mature established shrub borders. The gardens extend round the side of the house to the rear where there is a particularly private and sheltered patio area, as well as a further paved area and greenhouse. To the right hand side is an extensive rockery.
The property is situated in this enviable enclave on the fringe of Carleton, surrounded by an abundance of countryside walks, yet within easy reach of the broad range of shops, schools and recreational facilities offered by Pontefract town centre. Pontefract is approximately five minutes away with three railway stations, including direct link to London and the East Coast Main line from Pontefract Monkhill Station. The property has excellent access to the motorway network with the A1 approximately: 3 minutes by car, the M62 approximately 15 mins; approximately 40 minutes to York and Hull, 30 minutes approximately to Doncaster/Wakefield/Leeds city centres.
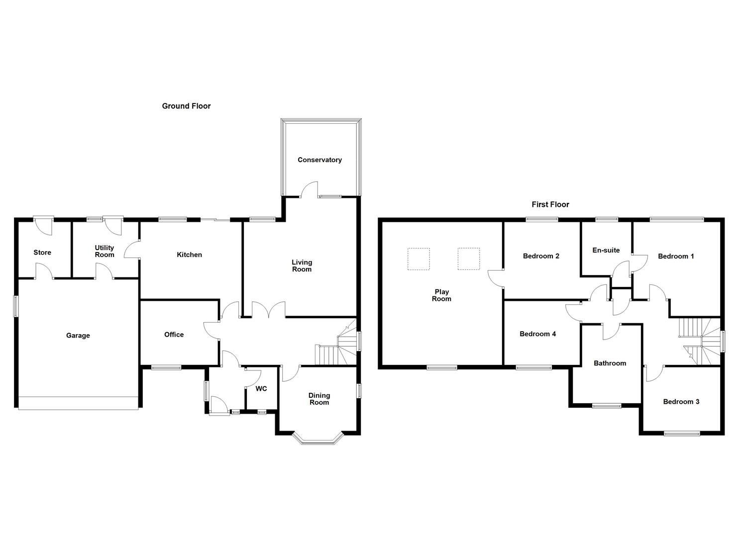
Accommodation -
Entrance Hall - 1.8m x 1.7m (5'10" x 5'6") - Wooden panelled front entrance door with side screen, additional window to the side and central heating radiator.
Guest Cloakroom - 2.0m x 1.4m (6'6" x 4'7") - Fitted with a two piece white cloakroom suite comprising low suite w.c. and pedestal wash basin. Frosted window to the front, part tiled walls, central heating radiator and frosted window to the front.
Living Room - 5.5m x 5.3m (max) (18'0" x 17'4" (max) ) - A lovely reception room with windows to the side and rear, double central heating radiators and a feature fireplace with ornate wooden surround with marbled insert and hearth housing a living flame coal effect gas fire.
Conservatory - 3.5m x 3.3m (11'5" x 10'9") - Windows to three sides, solid ceiling, double central heating radiator and door to the patio.
Dining Room - 3.6m x 3.0m (11'9" x 9'10") - Splay bay window to the front, additional window to the side and double central heating radiator.
Dining Kitchen - 4.7m x 3.6m (15'5" x 11'9") - A good range of cream fronted wall and base units with solid wood butchers block style work surface incorporating ceramic sink unit and four ring ceramic hob with filter hood over. Integrated oven and microwave, integrated fridge and dishwasher. A peninsula unit leading through to the adjoining breakfast area, window and French doors out to the patio at the rear.
Utility Room - 3.0m x 2.6m (9'10" x 8'6") - A further range of cream fronted units with solid wood butchers block style work surface incorporating ceramic sink unit. Window and external door to the rear. A connecting door through to the garage.
Double Garage - 5.7m x 5.5m (18'8" x 18'0") - Wide automated up and over door to the front, window to the side and door to the integral store room.
Study - 3.6m x 3.0m (11'9" x 9'10") - Window to the front and door to the reception hall.
Reception Hall - 6.4m x 2.2m (20'11" x 7'2") - A turn staircase to the first floor, double central heating radiator and useful understairs store.
First Floor Landing - Central landing with double central heating radiator, loft access point and built in linen cupboard.
Bedroom One - 5.6m x 4.0m (max) (18'4" x 13'1" (max)) - Window taking full advantage of the views at the rear, double central heating radiator and high quality range of fitted furniture including full height fitted wardrobes with matching drawers units and dressing table.
En Suite Shower Room - 2.5m x 2.3m (8'2" x 7'6") - Fitted with a three piece suite comprising large corner shower cubicle, vanity wash basin with cupboards under and low suite w.c. Frosted window to the rear, tiled walls, central heating radiator and airing cupboard.
Bedroom Two - 3.6m x 3.6m (11'9" x 11'9") - Window to the rear and two double fronted fitted wardrobes with matching dressing table and drawers. Connecting door through to the play room.
Play Room - 6.8m x 5.5m (22'3" x 18'0") - Window to the front, two double central heating radiators and two velux style rooflights for additional natural light. Access to eaves storage area and secondary loft.
Bedroom Three - 3.6m x 3.5m (11'9" x 11'5") - Window to the front and double central heating radiator.
Bedroom Four - 3.6m x 3.0m (11'9" x 9'10") - A further double bedroom with a window to the front and central heating radiator.
Family Bathroom/W.C. - 3.5m x 2.7m (11'5" x 8'10") - Fitted with a four piece white suite comprising panelled bath with telephone style shower attachment over, separate shower cubicle with Myra electric shower, pedestal wash basin and low suite w.c. Tiled walls, frosted window to the front, fitted cupboards, extractor fan and double central heating radiator.
Outside - To the front the property is approached via a generously proportioned block paved driveway that provides an ample off street parking space and leads up to the double garage. The front garden is laid mainly to lawn with well established shrubs and borders. The gardens extend round the side of the house to the rear where there is a lovely sheltered patio sitting area with shrub borders and further block paved area with greenhouse. To the right hand side of property sits an extensive rockery.
Council Tax Band - The council tax band for this property is G.
Floor Plans - These floor plans are intended as a rough guide only and are not to be intended as an exact representation and should not be scaled. We cannot confirm the accuracy of the measurements or details of these floor plans.
Viewings - To view please contact our Pontefract office and they will be pleased to arrange a suitable appointment.
Epc Rating - To view the full Energy Performance Certificate please call into one of our local offices.

This property is marketed by

Richard Kendall Estate Agent - Pontefract, Pontefract, WF8
4.9/5 Rating
(1653) reviews
Agent Statistics (Based on 1653 Reviews) :