The UK's Largest Customer Review Website for the Property Industry
The UK's Largest Customer Review Website for the Property Industry
Back to Property Listings
Millers Way, Fairford Leys
Property Features:
? Large Lounge: Bright and airy, perfect for relaxing or entertaining.
? Fully Fitted Kitchen: Modern and practical, with space for all your appliances.
? Two Double Bedrooms: Both benefit from built-in wardrobes for ample storage.
? New refurbished stylish bathroom with bath tub and rainfall shower head
? Downstairs Cloakroom: Convenient for guests and daily use.
? Conservatory: A versatile space for dining, work, or relaxing with garden views
? Garden: Private outdoor space, ideal for relaxing, gardening, or entertaining.
? Parking is available in front of the garage and to the front of the property.
COUNCIL TAX BAND:C
EPC BAND: C
AVAILABLE MID NOVEMBER
ZERO DEPOSIT OPTION AVAILABLE
Contact Mortimers today to book a viewing!
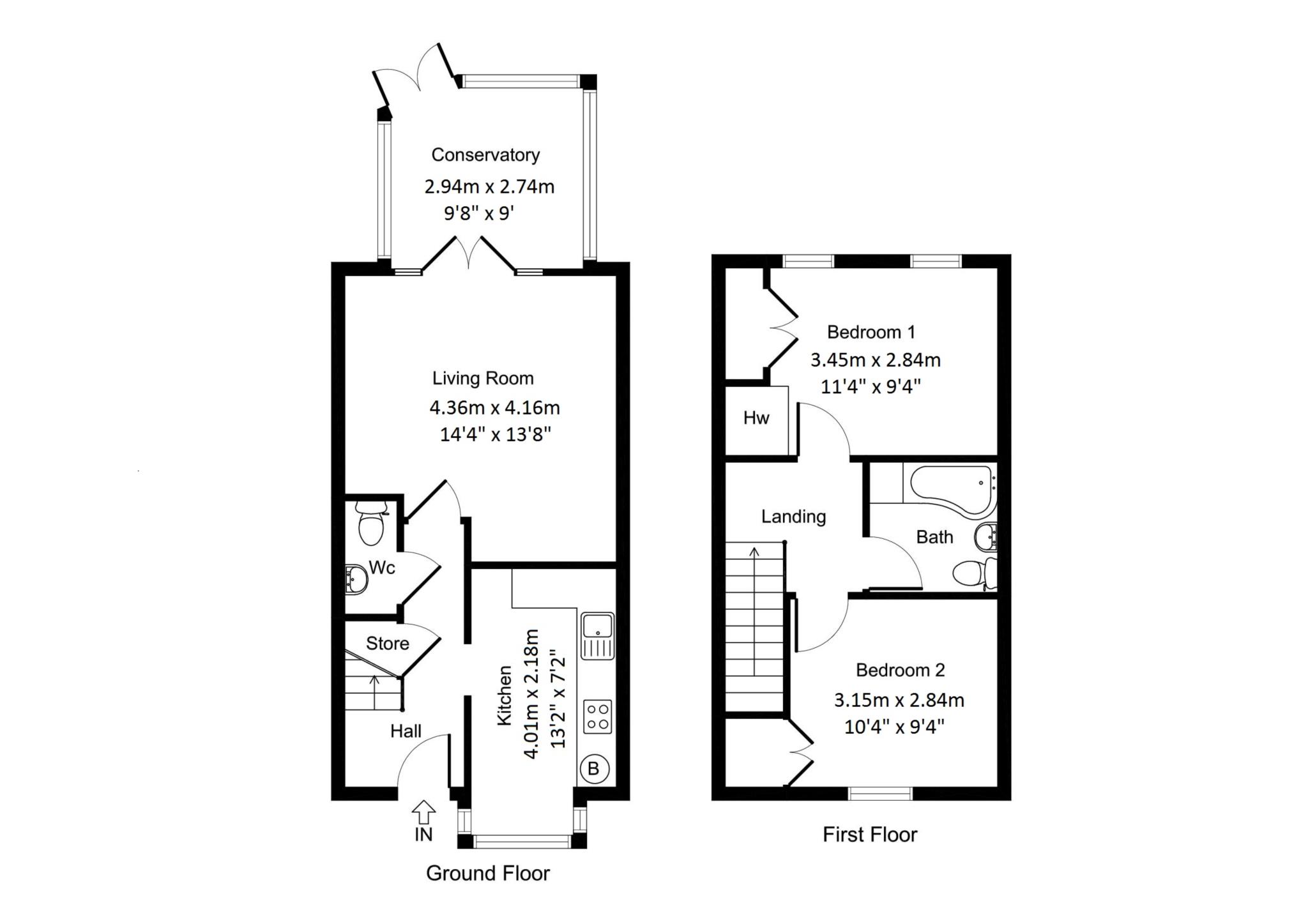
Cloakroom
Low level wc, pedestal wash hand basin, tiled splashbacks.
Kitchen/Breakfast Room - 13'2" (4.01m) x 7'2" (2.18m)
One and a half bowl single drainer sink unit with mixer taps, work surfaces, drawers and cupboards under, wall mounted storage cupboards, lighting beneath, tiled floor, plumbing for washing machine and dishwasher, fitted hob, oven and extractor, radiator, double glazed window to front aspect, wall mounted central heating boiler, recessed low voltage lighting.
Lounge - 14'4" (4.37m) x 13'8" (4.17m)
Wood laminate flooring, two radiators, recessed low voltage lighting, double glazed doors to:
Conservatory - 9'8" (2.95m) x 9'0" (2.74m)
Of brick and UPVC double glazed construction, tiled floor, radiator, double glazed French door leading to rear garden.
Landing
Radiator, airing cupboard.
Bedroom One - 11'4" (3.45m) x 9'4" (2.84m)
Two radiators, two double glazed windows to rear aspect, recessed low voltage lighting, deep built-in double wardrobe.
Bedroom Two - 10'4" (3.15m) x 9'4" (2.84m)
Double glazed window to front aspect, deep built-in double wardrobe.
Bathroom
A modern white suite comprising P-shaped bath with mixer taps and shower attachment, fitted shower screen, low level wc, wash hand basin with cupboards beneath, radiator, part tiled walls, tiled floor, recessed low voltage lighting.
Garden
Private rear garden with fenced and walled boundaries, circular paved patio, area of astro turf, mature shrubs and trees, outside water tap. Please note that their is a side gate access but no right of way over the adjoining driveway.
Garage
To the right of the property is a courtyard area with a block of garages. Number 26 has a single garage which is the second one in from the left.
Tenant Costs
The following are permitted payments which we may request from you:
a) The rent
b) A refundable tenancy deposit (reserved for any damages or defaults on the part of the tenant) capped at no more than five weeks` rent where the annual rent is less than ?50,000, or six weeks` rent where the total annual rent is ?50,000 or above
c) A refundable holding deposit (to reserve a property) capped at no more than one week`s rent
d) Payments to change the tenancy when requested by the tenant, capped at ?50, or reasonable costs incurred if higher
e) Payments associated with early termination of the tenancy, when requested by the tenant
f) Payments in respect of utilities, communication services, TV licence and council tax; and
g) A default fee for late payment of rent and replacement of a lost key/security device, where required under a tenancy agreement
Please call us if you wish to discuss this further.
Notice
All photographs are provided for guidance only.
Redress scheme provided by: The Property Ombudsman (D03298)
Client Money Protection provided by: Propertymark (C0122797)
Utilities
Electric: Mains Supply
Gas: Mains Supply
Water: Mains Supply
Sewerage: None
Broadband: None
Telephone: None
Other Items
Heating: Gas Central Heating
Garden/Outside Space: Yes
Parking: Yes
Garage: Yes

Agent Statistics (Based on 3 Reviews) :