The UK's Largest Customer Review Website for the Property Industry
The UK's Largest Customer Review Website for the Property Industry
Back to Property Listings
Liverpool Road, Portsmouth
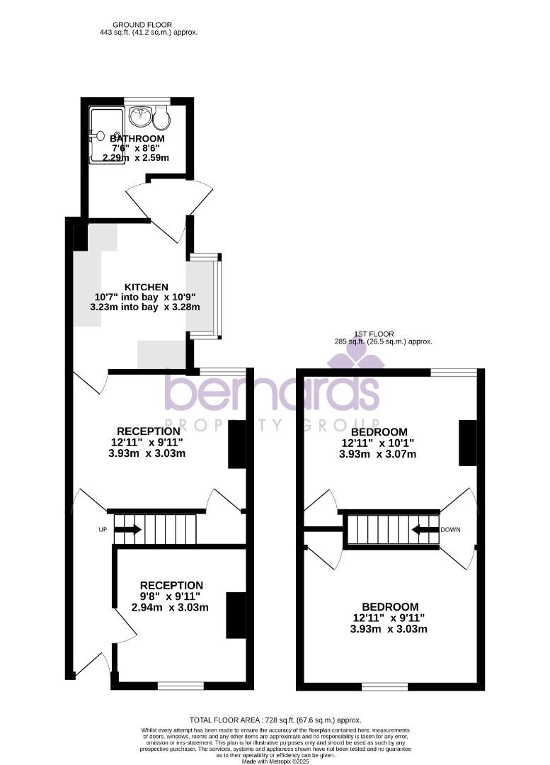
Nestled on Liverpool Road in the vibrant area of Fratton, Portsmouth, this charming end-of-terrace house presents an excellent opportunity for both first-time buyers and investors alike. With a traditional "2 up, 2 down" layout, the property boasts two well-proportioned reception rooms, providing ample space for relaxation and entertaining.
The house features two comfortable bedrooms, perfect for a small family or as guest accommodation.
One of the standout features of this property is the brand new kitchen, which offers a fresh and contemporary space for culinary enthusiasts. The low maintenance garden at the rear is perfect for those who prefer to spend their time enjoying the outdoors rather than tending to extensive gardening duties.
With no forward chain, this home is ready for immediate occupancy, allowing you to settle in without delay. The location in Fratton is well-connected, providing easy access to local amenities, transport links, and the vibrant culture of Portsmouth.
Entrance -
Lounge - 3.03 x 2.94 (9'11" x 9'7") -
Dining Room - 3.93 x 3.03 (12'10" x 9'11") -
Kitchen - 3.28 x 3.23 (10'9" x 10'7") -
Bathroom - 2.59 x 2.29 (8'5" x 7'6") -
Bedroom One - 3.93 x 3.03 (12'10" x 9'11") -
Bedroom Two - 3.93 x 3.07 (12'10" x 10'0") -
Mortgage Advisor - We offer financial services here at Bernards. If you would like to review your current Agreement In Principle or are yet to source a lender, we have a number of experienced Financial Advisors who will be happy to help.
Offer Check Procedure - If you are considering making an offer for this or any other property Bernards Estate Agents are marketing, please make contact with your local office so we can verify/check your financial/Mortgage situation.
Portsmouth Council Tax - The local authority is Portsmouth City Council.
BAND :
Removal Quote - As part of our drive to assist clients with all aspects of the moving process, we have sourced a reputable removal company. Please ask a member of our sales team for further details and a quotation.

This property is marketed by

Bernards Estate Agents - Portsmouth, Portsmouth, PO2
4.9/5 Rating
(1190) reviews
Agent Statistics (Based on 1190 Reviews) :