The UK's Largest Customer Review Website for the Property Industry
The UK's Largest Customer Review Website for the Property Industry
Back to Property Listings
Langthorne Road, Leytonstone
In the heart of Leyton, this beautifully renovated one-bedroom home has been architecturally designed with style and practicality in mind. Just moments from the High Road's shops and amenities-and a short walk to the independent cafés and boutiques along Francis Road-it balances everyday convenience with neighbourhood character. Inside, the property has been finished to a high standard throughout, while outside a generous south-facing private garden offers plenty of space to relax or entertain. At the far end, a versatile garden studio adds even more flexibility-perfect as a home office, creative space, or occasional guest room. Leyton Underground (Central Line) is a short walk away, so whether it's the daily commute or a quick trip into town, getting around couldn't be simpler.
IF YOU LIVED HERE...
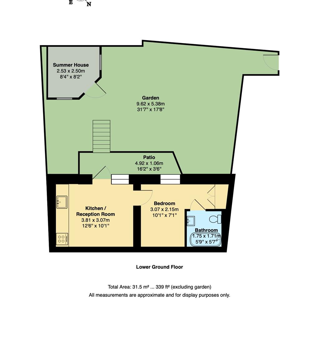
This home is full of pleasant surprises, starting the moment you step through your own private front door. Instead of walking straight inside, you arrive in a secluded, decked garden-an inviting outdoor space that's low-maintenance yet flexible. Tucked neatly into one corner, a wooden garden studio with a lantern roof adds to the versatility: perfect as a home office, guest space, or simply a quiet retreat.
A few steps down brings you into the south-facing, lower ground floor flat itself. French doors flood the kitchen and reception room with natural light, while solid oak flooring runs throughout, giving the whole space a warm, airy feel. The kitchen runs along one side with integrated appliances and open shelving, designed in a warm neutral tadelakt, with travertine sink and brass taps. Opposite, a clever shelving wall acts as an ingenious room divider, allowing extra light to flow through into the bedroom behind.
The double bedroom has a floor-to-ceiling window and a mirrored built-in wardrobe that bounces light across the blond flooring, making the room feel generous and bright. The bathroom is tucked behind a characterful wooden door, with a claw-foot bath (that doubles as a shower), a recessed nook for toiletries, and a travertine sink that adds a designer touch.
All told, it's a stylish and surprisingly spacious home-an ideal first step on the ladder for anyone wanting to settle into this vibrant neighbourhood.
WHAT ELSE
The popular Leyton Mills Retail Park is also just around the corner, which has an abundance of supermarkets and stores.
Westfield Stratford City puts everything you need under one roof-with all your favourite brands, a huge choice of places to eat and drink, and a 20-screen cinema that caters to even the most discerning film fans.
Just a short distance away, the Queen Elizabeth Olympic Park offers the perfect escape for runners, walkers, and cyclists who want a dose of nature without leaving the city. Also nearby is East Bank-a groundbreaking new cultural quarter that brings together world-class institutions including Sadler's Wells, the BBC, the V&A, and leading universities.
Kitchen / Reception Room - 3.81 x 3.07 (12'5" x 10'0") -
Bedroom - 3.07 x 2.15 (10'0" x 7'0") -
Bathroom - 1.75 x 1.71 (5'8" x 5'7") -
Garden - 9.62 x 5.38 (31'6" x 17'7") -
A WORD FROM THE EXPERT...
"Leytonstone is a unique, eclectic area, with great gastro pubs like Leytonstone Tavern and The Red Lion to bistro cafés like The Wild Goose Bakery and Back to Ours, along with the open green space of Wanstead Flats, a serene getaway from the hustle and bustle of urban life.
The area is full of history, with interesting, beautiful Grade II listed buildings like St John's Baptist Church (built in 1832) and Leytonstone House, the 18th-century home of Sir Edward Buxton, notable MP and conservationist. There's also St Andrew's Church, built in 1886-1893 as a memorial to local philanthropist William Cotton.
Leytonstone Library is a great place to visit if you're feeling studious and Leytonstone Leisure centre is close by for the more actively minded. Wanstead Park, in the former grounds of Wanstead House, takes in walking trails, cycle paths and several ornamental lakes - a great place to relax, exercise and soak up some local history.
With an array of buses and the Central line underground station close by, you can be in the City and surrounding areas within minutes."
JOSEPH EARNSHAW
E11 BRANCH MANAGER

Agent Statistics (Based on 2865 Reviews) :