The UK's Largest Customer Review Website for the Property Industry
The UK's Largest Customer Review Website for the Property Industry
Back to Property Listings
Lady Grey Avenue, Heathcote, Warwick
A very well presented, executive three storey detached family home on a generous plot situated in the sought after Heathcote area of Warwick.
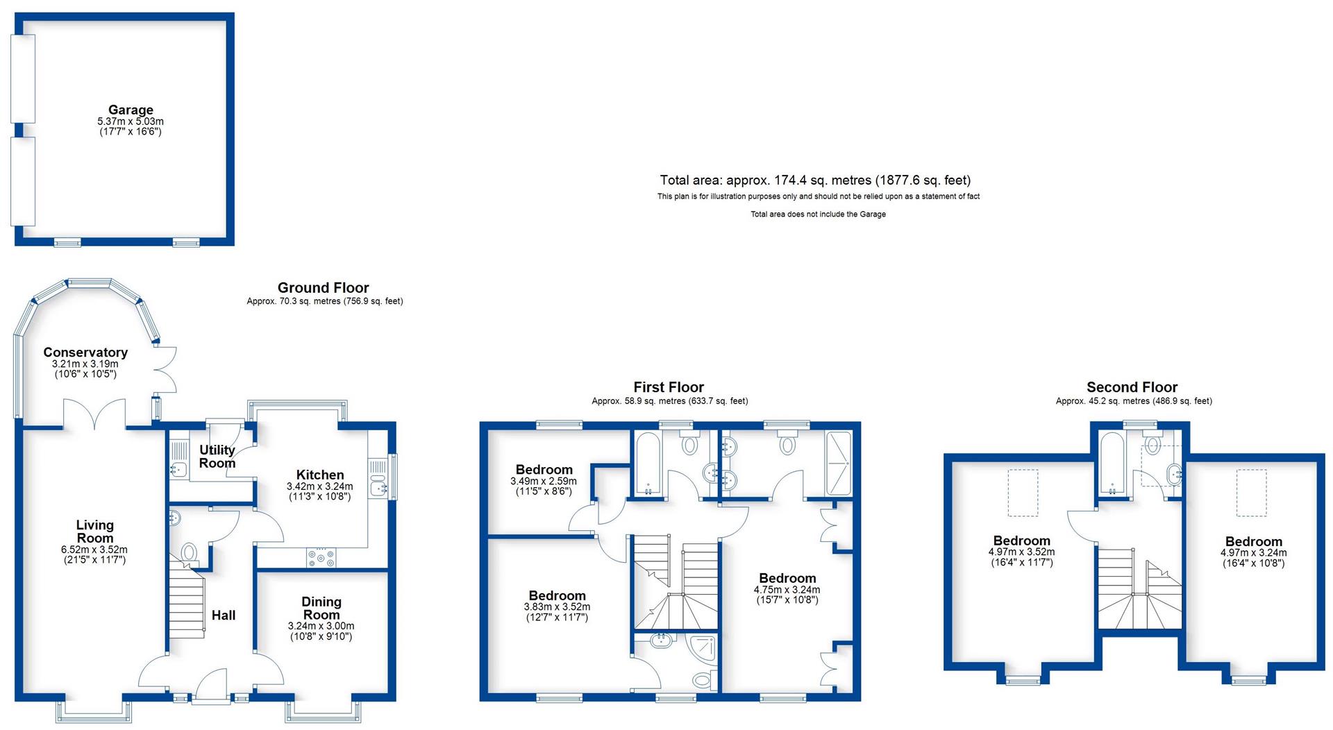
The spacious accommodation briefly comprises - Entrance hall, spacious living room, contemporary kitchen with utility, dining room, conservatory and downstairs w.c. To the first floor there is a master bedroom with fitted wardrobes & en suite, bedroom two with en suite, a further bedroom and a family bathroom.
To the second floor there are two double bedrooms and a further bathroom. Externally the rear garden is private with access to the front and double detached garage with parking for two vehicles.
Warwick Gates offers many amenities, including a variety of shops, a Family Health Centre and Health Club and a local primary school. Facilities in both Leamington Spa and Warwick are easily accessible as are excellent local road links including those to neighbouring centres and the Midland motorway network, notably the M40.
Entrance Hall -
Cloakroom/W.C -
Living Room - 6.52 x 3.52 (21'4" x 11'6") -
Dining Room - 3.24 x 3.00 (10'7" x 9'10") -
Kitchen - 3.42 x 3.24 (11'2" x 10'7") -
Utility Room -
Conservatory - 3.21 x 3.19 (10'6" x 10'5") -
Bedroom - 4.75 x 3.24 (15'7" x 10'7") -
En-Suite Shower Room -
Bedroom - 3.83 x 3.52 (12'6" x 11'6") -
En-Suite Shower Room -
Bedroom - 3.49 x 2.59 (11'5" x 8'5") -
Bathroom -
Bedroom - 4.97 x 3.52 (16'3" x 11'6") -
Bedroom - 4.97 x 3.24 (16'3" x 10'7") -
Bathroom -
Double Garage - 5.37 x 5.03 (17'7" x 16'6") -

This property is marketed by

Sheldon Bosley Knight - Leamington Spa, Leamington Spa, CV32
5/5 Rating
(1255) reviews
Agent Statistics (Based on 1255 Reviews) :