The UK's Largest Customer Review Website for the Property Industry
The UK's Largest Customer Review Website for the Property Industry
Back to Property Listings
King Street, Normanton
An END terraced THREE bedroom property benefitting from AMPLE reception space and on street permit PARKING. VIEWING ESSENTIAL. EPC rating D59.
This three bedroom traditional terraced house is located in a popular residential area within easy reach of Normanton town centre. The property benefits from gas fired central heating and double glazed windows, offering comfortable and spacious accommodation with scope for cosmetic updating to suit personal taste.
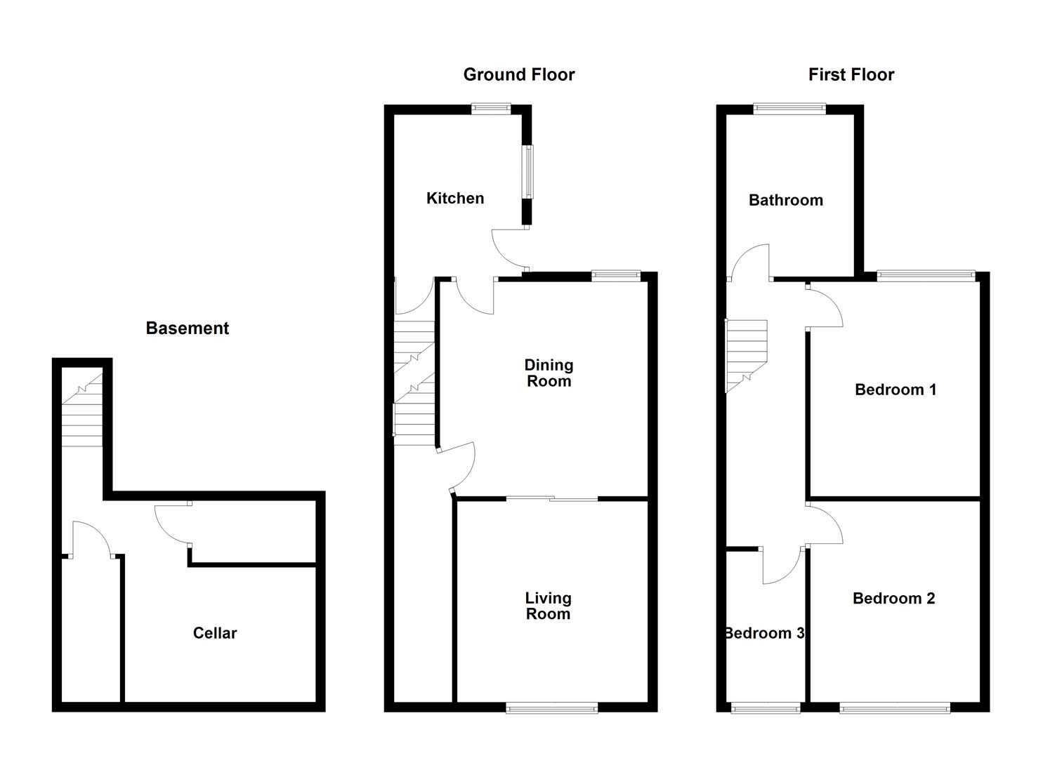
The home is approached via a welcoming entrance hall which leads into a well proportioned living room, featuring an attractive fireplace and double doors opening into the adjoining dining room. The kitchen is fitted with a broad range of wooden fronted units and includes access to the cellar, providing valuable additional storage space. To the first floor, there are two generous double bedrooms and a further single bedroom, all served by a well sized family bathroom. Externally, the property offers a buffer style garden to the front with on street permit parking available, while to the rear there is a larger, low maintenance garden with a gate leading out to the side lane.
The property is ideally situated close to the wide range of shops, schools, and recreational facilities available in Normanton town centre. Normanton also benefits from its own railway station and convenient access to the national motorway network.
Accommodation -
Entrance Hall - UPVC double glazed entrance door into the entrance hall, concealed central heating radiator, stairs to the first floor landing. Door to the dining room.
Living Room - 4.1m x 3.9m (13'5" x 12'9") - UPVC double glazed window to the front, double central heating radiator, ceiling cornice, tiled fireplace (currently not in use). Double sliding doors through to the adjoining dining room.
Dining Room - 4.3m x 4.2m (14'1" x 13'9") - UPVC double glazed window to the rear, double central heating radiator, fireplace with wooden surround and marbled insert and hearth housing a gas fire.
Kitchen - 3.4m x 2.6m (11'1" x 8'6") - UPVC double glazed windows to the sides, door to the rear garden, door providing access to the stairs to the cellar. Fitted with a range of wall and base units with laminate worksurfaces, stainless steel sink and drainer, adjoining breakfast bar. Space and plumbing for a washing machine, space for a fridge/freezer, space for a gas cooker.
Cellar - Ample storage space.
First Floor Landing - Loft access and doors to three bedrooms and the bathroom.
Bedroom One - 4.4m x 3.4m (14'5" x 11'1") - UPVC double glazed window to the rear, central heating radiator.
Bedroom Two - 4.1m x 3.4m (13'5" x 11'1") - UPVC double glazed window to the front, central heating radiator.
Bedroom Three - 3.1m x 1.6m (10'2" x 5'2") - UPVC double glazed window to the front, central heating radiator.
Bathroom - 3.3m x 2.6m (10'9" x 8'6") - Frosted UPVC double glazed window to the rear, central heating radiator, tiled walls and floor, built in storage cupboard housing the hot water cylinder. Fitted with a three piece suite comprising of a corner shower cubicle with glazed screen, wash basin and a low suite W.C..
Outside - To the front of the property there is a buffer style garden with permit on street parking. To the rear of the property there is a larger block paved low maintenance garden with a brick built store and a gate to the lane at the side.
Council Tax Band - The council tax band for this property is A.
Floor Plans - These floor plans are intended as a rough guide only and are not to be intended as an exact representation and should not be scaled. We cannot confirm the accuracy of the measurements or details of these floor plans.
Epc Rating - To view the full Energy Performance Certificate please call into one of our local offices.
Viewings - To view please contact our Normanton office and they will be pleased to arrange a suitable appointment.

This property is marketed by

Richard Kendall Estate Agent - Normanton, Normanton, WF6
4.9/5 Rating
(1653) reviews
Agent Statistics (Based on 1653 Reviews) :