The UK's Largest Customer Review Website for the Property Industry
The UK's Largest Customer Review Website for the Property Industry
Back to Property Listings
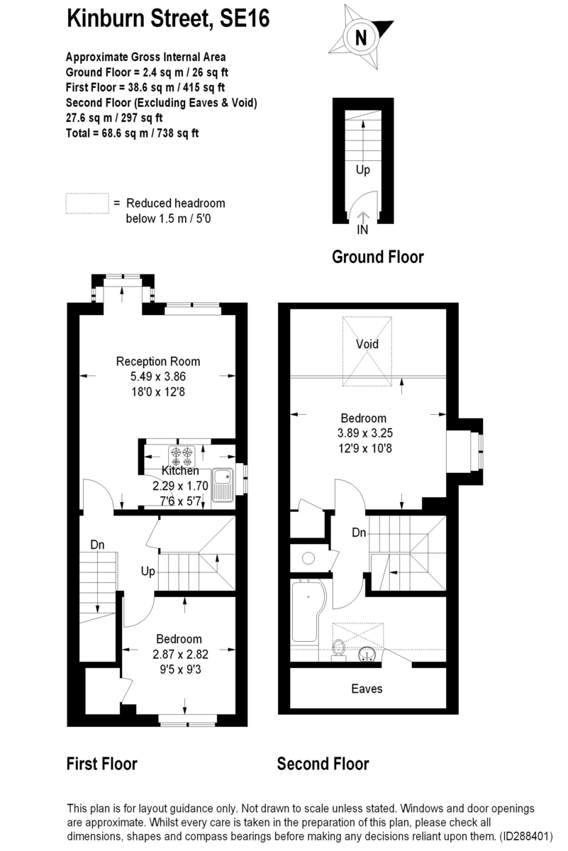
Kinburn Street, Rotherhithe, SE16
Chain-free two-bedroom split-level maisonette close to Canada Water and Rotherhithe stations. Offers a 960-year lease, £80 ground rent, scope to create an open-plan layout. A fantastic opportunity to update and add value.
Details - Tenure: Leasehold
Guide Price: £450,000 – £475,000
Offered to the market chain free, this well-presented two-bedroom split-level maisonette is ideally located on a quiet residential street just moments from Canada Water Tube Station (Jubilee Line) and Rotherhithe Overground, providing superb links into Canary Wharf, London Bridge and the West End.
The property benefits from a 960-year lease, an exceptionally low ground rent of £80 per annum. There is also scope to create a modern open-plan kitchen/living space, making this a fantastic opportunity for buyers seeking a home they can update and add value to.
Location:
Kinburn Street, Rotherhithe, SE16 6DW – a sought-after neighbourhood known for its peaceful residential feel, riverside walks, and proximity to major transport hubs, local cafés, parks, and shopping at Canada Water.

Agent Statistics (Based on 345 Reviews) :