The UK's Largest Customer Review Website for the Property Industry
The UK's Largest Customer Review Website for the Property Industry
Back to Property Listings
Howe Road, Haverhill
A well presented, detached three bedroom property situated on the popular Arrendene development. Benefitting by a generous lounge area, spacious rear garden, single garage and allocated parking space. (EPC Rating C)
Haverhill is a thriving and popular market town, the fastest growing in Suffolk, and is one of the most convenient towns for access to Cambridge (17 miles), London Stansted Airport (around 30 minutes drive) and the M11 corridor. There is a mainline rail station at Audley End (12 miles) direct in to London Liverpool Street.
Despite its excellent road links, Haverhill remains a relatively affordable place to buy and rent a property. Continuing private and public investment into the town to provides it with growing residential, commercial and leisure facilities.
Current facilities include High Street shopping with a popular twice weekly market, out of town shopping, public houses, cafes, restaurants, social clubs and hotels, a well-respected 18 hole golf course, a comprehensive nursery and schooling system, a well used sports centre with all weather pitches, gymnasia, churches of various denominations and much more. The town centre is attracting a growing number of national chains and there is also a town centre multiplex cinema complex with associated eateries.
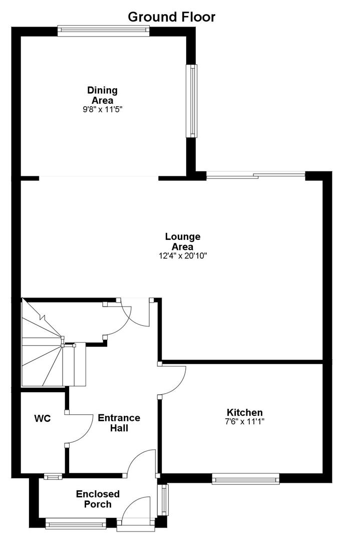
Ground Floor -
Entrance Porch - Window to front and side, door to:
Entrance Hall - Stairs to first floor, understairs storage, doors to:
Wc - Two piece suite comprising pedestal hand wash basin, low level wc, window to front.
Kitchen - 3.38m x 2.29m (11'1 x 7'6) - Fitted with matching base and eye level units with worktop over, stainless steel sink with mixer tap, integrated dishwasher, plumbing for washing machine, space for tumble dryer, space for fridge/freezer, eye level double oven, induction hob with extractor over, window to front.
Lounge - 6.35m x 3.76m (20'10 x 12'4) - Sliding doors to rear garden, radiator, open plan to:
Dining Room - 3.48m x 2.95m (11'5 x 9'8) - Dual aspect windows, radiator.
First Floor -
Bedroom One - 3.78m x 3.23m (12'5 x 10'7) - Window to rear, radiator.
Bedroom Two - 3.18m x 2.49m (10'5 x 8'2) - Window to rear, radiator.
Bedroom Three - 3.23m x 2.31m (10'7 x 7'7) - Window to front, radiator.
Bathroom - Three piece suite comprising panelled bath with shower over, pedestal hand wash basin, low level wc, extractor fan, radiator, obscure window to front.
Outside - Shingle front garden, with a side access gate to the rear garden. The garden is predominantly laid lawn with a patio area for seating and shingle area to the side. There is a personal access door into the garage.
Parking - Single garage with up and over door, personal access door into rear garden. One allocated parking space.
Agents Note - AGENTS NOTE - For more information on this property, please refer to the Material Information brochure that can be found on our website.
VIEWINGS By appointment through the Agents.
Special Notes - 1. None of the fixtures and fittings are included in the sale unless specifically mentioned in these particulars.
2. Please note that none of the appliances or the services at this property have been checked and we would recommend that these are tested by a qualified person before entering into any commitment. Please note that any request for access to test services is at the discretion of the owner.
3. Floorplans are produced for identification purposes only and are in no way a scale representation of the accommodation.

Agent Statistics (Based on 1530 Reviews) :