The UK's Largest Customer Review Website for the Property Industry
The UK's Largest Customer Review Website for the Property Industry
Back to Property Listings
Hazelwood Close, Cambridge
Hazelwood Close sits within a peaceful residential pocket of Cambridge, surrounded by mature greenery and pedestrian-friendly walkways that give the neighbourhood a tucked-away, private feel. This part of the city offers excellent access to a wide range of everyday amenities, with nearby local shops, supermarkets, schools, and medical facilities all within easy reach.
Good transport options are close at hand, including regular bus links into the city centre, Addenbrooke's Hospital, Cambridge Railway Station, and the surrounding employment hubs. For those who enjoy outdoor space, the area features several parks, natural green corridors, and riverside walking routes, offering a calm contrast to the bustle of central Cambridge.
Hazelwood Close is a location that appeals to buyers seeking convenience, community, and accessibility, while still benefiting from a quieter neighbourhood setting.
This three-bedroom end-terrace home presents an outstanding opportunity for buyers looking for a full renovation project. Offering generous internal proportions across two floors, the property is ready for complete modernisation and provides an excellent blank canvas for those keen to reconfigure, redesign, and add value.
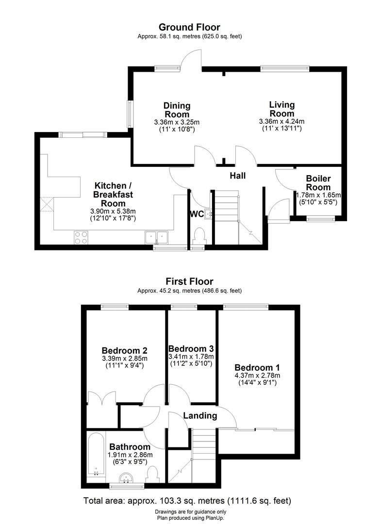
The ground floor includes a sizeable kitchen/breakfast room, a separate dining room, and a large living room with dual-aspect windows and access to the rear garden. There is also a downstairs WC and a useful boiler/utility room. The first floor offers three bedrooms-two good doubles and a further single-alongside a family bathroom.
Outside, the property benefits from a private rear garden with established trees and shrubs, whilst the front approach offers a courtyard-style entrance with planting and scope for landscaping.
With its spacious layout, end-terrace position, and substantial refurbishment potential, this property is ideal for developers, investors, or owner-occupiers looking for a project in a well-connected Cambridge location.
Sold chain-free, with part exchange considered, this is a rare opportunity to secure a sizeable home with significant scope for improvement.
Please call us on 01223 307 898 to arrange a viewing and for all of your residential Sales and Lettings requirements in Cambridge and the surrounding areas.
Agent Notes - Tenure: Freehold
Chain free.
Council tax band: C

Agent Statistics (Based on 356 Reviews) :