The UK's Largest Customer Review Website for the Property Industry
The UK's Largest Customer Review Website for the Property Industry
Back to Property Listings
Hawthorne Crescent, West Drayton
Well-maintained one-bedroom ground floor maisonette with two parking spaces, large private garden, spacious living area and excellent transport links. Ideal for first time buyers and investors.
Description - Cameron are delighted to present this well-maintained one-bedroom ground floor maisonette, benefiting from allocated parking and a large private rear garden. Situated on a quiet residential road just half a mile from West Drayton High Street and West Drayton Elizabeth Line Station, the property offers excellent transport links into Central London. This home represents an ideal opportunity for both first-time buyers and investors alike.
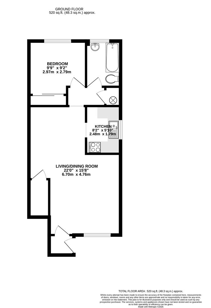
Accommodation - The accommodation comprises an entrance porch leading into an impressive 22' x 15'8" living/dining area. This exceptionally spacious room is ideal for entertaining and is complemented by a generous storage cupboard. The property also benefits from a separate kitchen, fitted with an integrated electric hob, free standing fridge freezer and washing machine, along with a large window offering pleasant views over the garden. To the rear of the property are the bedroom and bathroom. The double bedroom features a large built-in wardrobe, while the bathroom is fitted with a bath, electric shower, wash basin and WC.
Outside - The property benefits from two allocated parking spaces as well as a large private garden.
Location - Hawthorne Crescent is located in West Drayton which offers excellent transport links into the Capital. Frequent services from West Drayton Station reach London Paddington in under 25 minutes, with the Elizabeth Line providing direct access to Canary Wharf in around 40 minutes. The property also benefits from easy access to the M4 and M25 motorways. Local shops, schools and bus routes are within walking distance, with West Drayton Town Centre and Heathrow Airport just a short journey away.
Terms And Notification Of Sale - Tenure: Share of Freehold
Local Authority: London Borough of Hillingdon
Council tax band: C
EPC rating: D
Lease term: 88 years remaining
Service charge: £0 per annum
Ground rent: £0 per annum

This property is marketed by

Cameron Estate Agents - Uxbridge, Uxbridge, UB8
4.8/5 Rating
(1176) reviews
Agent Statistics (Based on 1176 Reviews) :