The UK's Largest Customer Review Website for the Property Industry
The UK's Largest Customer Review Website for the Property Industry
Back to Property Listings
Hartley Road, Leytonstone
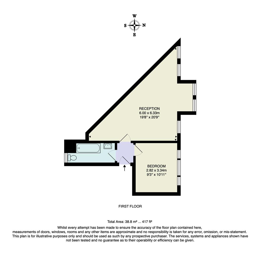
Tucked between the wide-open skies of Wanstead Flats and the lively streets of Leytonstone, this bright one-bedroom apartment sits in the sought-after Bushwood area. Set on the first floor of a handsome Victorian conversion, it offers 417 square feet of carefully renovated space, all on one easy-to-manage level. The location keeps you well connected, with the Central line, Elizabeth line and Overground all within a mile, making trips across London - or out of it - simple and fast. Offered chain-free, it's ready for you to move straight in and start enjoying life in this vibrant, well-loved neighbourhood.
IF YOU LIVED HERE...
As you step through your own front entrance, you'll find a space that's refreshingly clean-lined and airy, just waiting for you to add personal touches. If you're a lover of minimalism, leave it just as it is - basically a blank canvas, just waiting for your arrival.
To the left, the bathroom gives the option of relaxing soaks or quick refreshes when it's time to dash out the door, thanks to the glazed bath and shower combination. A mirrored cabinet keeps surfaces clutter-free. The double bedroom is light-filled thanks to three large double-glazed windows and softly decorated in a pale sage for a restful night's sleep.
Beyond, the open-plan kitchen/reception room has been brilliantly designed to maximise living space. Flooded with natural light thanks to plentiful and parge windows down one side with the kitchen running across the opposite wall, there's a natural area left to arrange a dining table and sofa, depending on your rhythm. The cabinetry is putty-coloured with a charcoal worktop and crisp white metro tiled splashback
Outside, you'll be even more delighted by your classic Bushwood view. This area is renowned for its wide, tree-lined streets of grand Victorian and Edwardian homes. Speaking of history, Wanstead Flats, once the favoured hunting ground of Henry VIII, is a few metres away, while in the other direction, you'll find all the modern buzz of Leytonstone. Within around 15 minutes on foot, you can reach neighbourhood favourites like Filly Brook and Heathcote & Star. Even closer to home, you'll find your new locals, the excellent North Star or The Red Lion - great for lazy Sunday roasts and gigs in their ballroom.
WHAT ELSE
Leytonstone tube (Central line) is 9 minutes on foot, where you can nip into the West End in less than half an hour, and Leytonstone High Road station is just 14 14-minute walk, for the Gospel Oak to Barking line - handy if you want to nip to the seaside.
As well as all the lovely amenities in the area, you'll never be stuck for essentials since the Leytonstone High Road is only a few minutes away, giving you easy access to a Tesco, and the newly opened Aldi and Marks and Spencers food hall
Just two stops and you're at the brand Mecca of Westfield, and it's 20-screen cinema
Nature lovers will adore the nearby green spaces, including the vast and scenic Wanstead Flats- perfect for morning jogs, weekend picnics, or simply unwinding in the fresh air.
Kitchen/ Lounge/ Diner - 6.00m x 6.05m (19'8" x 19'10" ) -
Bedroom - 2.81m x 3.34m (9'2" x 10'11" ) -
Bathroom - 3.21m x 1.32m (10'6" x 4'3" ) -
A WORD FROM THE EXPERT........
"Leytonstone is a unique, eclectic area, with great gastro pubs like Leytonstone Tavern and The Red Lion to bistro cafés like The Wild Goose Bakery and Gray, along with the open green space of Wanstead Flats, a serene getaway from the hustle and bustle of urban life.
With an array of buses and the Central line underground station close by, you can be in the City and surrounding areas within minutes."
JOSEPH EARNSHAW
E11 BRANCH MANAGER

Agent Statistics (Based on 2865 Reviews) :