The UK's Largest Customer Review Website for the Property Industry
The UK's Largest Customer Review Website for the Property Industry
Back to Property Listings
Grafton Way, West Molesey
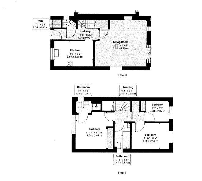
Situated in a popular residential area, this three-bedroom family home offers well-balanced accommodation arranged over two floors. On the ground floor, the property opens into a welcoming hallway which leads through to a generous living room measuring 16'5 by 15'4, providing an ideal space for both everyday living and entertaining and benefits from doors leading out to the garden. The kitchen, positioned to the front of the house, is well-proportioned and benefits from ample storage and workspace. A cloakroom completes the ground floor.
Upstairs, the accommodation is thoughtfully laid out with three bedrooms and a family bathroom. The principal bedroom is a spacious double, with an en-suite w/c (offering potential to convert into a shower room). While the second and third bedrooms offer good proportions.
Externally, the property benefits from 1 allocated parking space, a garage and a good-size garden. Sold with no onward chain.
Located close to local schools, shops and amenities, and with good transport connections nearby, this home represents an excellent opportunity for buyers looking for a practical and well-situated property in West Molesey.

This property is marketed by

Rawlinson & Webber - East Molesey, East Molesey, KT8
4.9/5 Rating
(258) reviews
Agent Statistics (Based on 258 Reviews) :