The UK's Largest Customer Review Website for the Property Industry
The UK's Largest Customer Review Website for the Property Industry
Back to Property Listings
Georgian View, Bath
Luxury modern 6 double bedroom student house with off-street parking in Odd Down, on university bus routes.
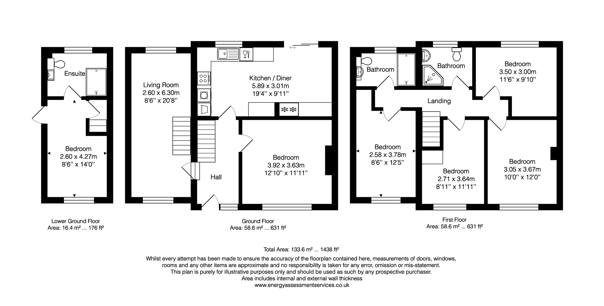
A newly refurbished six bedroom student property.
Accommodation is set over three storeys with a sitting room, kitchen/dining room and bedroom on the ground floor, four bedrooms and two shower rooms on the first floor and the final bedroom with an ensuite on the lower ground floor.
All bedrooms come with either a double or small double bed, wardrobe, chest of drawers, desk & chair and bedside cabinets where available. Kitchen comes with hob/oven, washer/dryer and fridge freezer.
This property also offers a rear garden with two separate patio areas, lawn and decking. At the front of the property you will find off street parking for several cars.
Georgian View is conveniently located off Englishcombe Lane. A bus service from Englishcombe Lane takes you into Bath City centre and the University of Bath. The property is also convenient for those commuting to Bristol via The Globe roundabout at Newton Park. Tesco Express on Englishcombe Lane is within a short walk of the property and Sainsburys supermarket on Frome Road in Odd Down is within 1.7 miles.
The property is also within 3.6 miles of Bath Spa University and within 3.8 miles of University of Bath. Your best option getting to Bath University is the U2,for Bath Spa your best option is the U5 or U6. University bus routes https://www.firstgroup.com/bristol-bath-and-west/routes-and-maps/universities

Agent Statistics (Based on 99 Reviews) :