The UK's Largest Customer Review Website for the Property Industry
The UK's Largest Customer Review Website for the Property Industry
Back to Property Listings
Cley Lane, Saham Toney
Offered for sale CHAIN FREE!
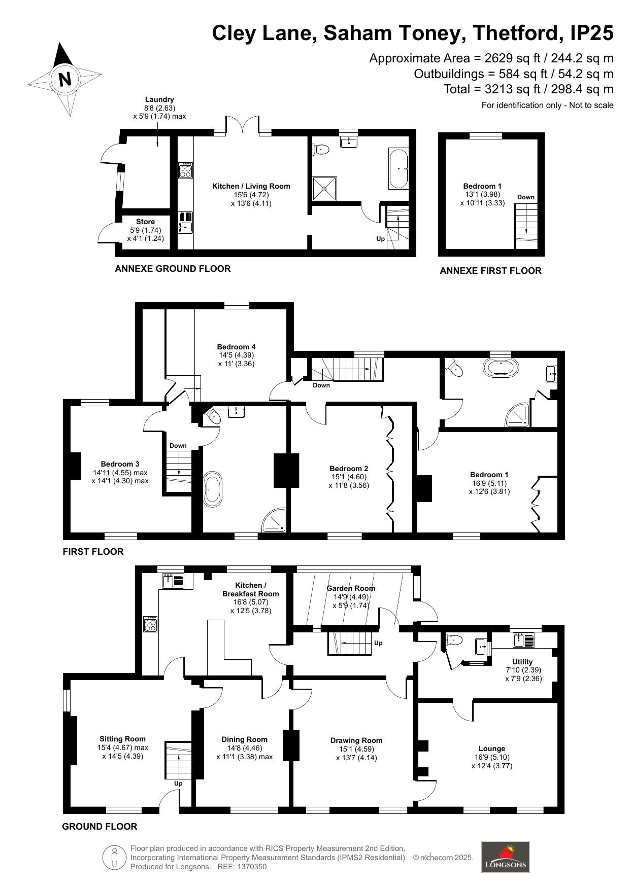
Situated in a desirable location on the outskirts of Watton, Longsons are delighted to bring to the market this extremely well presented, substantial detached four bedroom house with its own self contained one bedroom annexe. This fantastic property has an awful lot to offer and includes four reception rooms with kitchen/breakfast room, utility and cloakroom, two bathrooms, three working fireplaces, parking, gardens, gas central heating, UPVC double glazing and its very own separate self contained one bedroom annexe.
Viewing highly recommended to fully appreciate all on offer.
Briefly the property offers sitting room, dining room, drawing room, lounge, kitchen/breakfast room, inner hall, garden room, cloakroom, three working fireplaces, two staircases, four bedroom, two bathrooms, annexe with kitchen/living room, bathroom and one bedroom, all with UPVC double glazing, gas central heating, gardens, parking and carport.
SAHAM TONEY
Saham Toney is a village located in the Breckland area on the outskirts of the market town of Watton and 27 miles West of Norwich. The village boasts a public house, hotel, church, primary school and an active community hall.
Sitting Room - 15'4" (4.67m) x 14'5" (4.39m)
Feature fireplace with open fire, entrance door to front, UPVC double glazed window to front and side, stairs to first floor, radiator.
Dining Room - 14'8" (4.47m) x 11'1" (3.38m)
UPVC double glazed window to front, feature fireplace (currently not in use), radiator.
Drawing Room - 15'1" (4.6m) x 13'7" (4.14m)
Feature fireplace with open fire, two UPVC double glazed windows to front, radiator.
Lounge - 16'9" (5.11m) x 12'4" (3.76m)
Feature fireplace with wood burning stove, two UPVC double glazed windows to front, radiator.
Kitchen/Breakfast Room - 16'8" (5.08m) x 12'5" (3.78m)
Range of fitted units to walls and floor, oak worksurface over, tiled splashback, breakfast bar with oak worksurface, stainless steel sink unit with mixer tap and drainer, space for Range style cooker with extractor hood over, space and plumbing for dishwasher, UPVC double glazed window to rear, tiles to floor, radiator.
Inner Hall
Stairs to first floor, radiator, entrance door leading to porch.
Garden Room - 14'9" (4.5m) x 5'9" (1.75m)
UPVC double glazed garden room, entrance door leading to garden.
Utility Room - 7'10" (2.39m) Min x 7'9" (2.36m) Min
worksurface over, stainless steel sink with mixer tap and drainer, space and plumbing for washing machine and dishwasher.
Cloakroom
Hand wash basin, WC, two UPVC double glazed windows.
1st Stairs and Landing
Access to bedroom one, two and bathroom one, loft access.
Bedroom One - 16'9" (5.11m) x 12'6" (3.81m)
Fitted wardrobes, UPVC double glazed window to front, radiator.
Bedroom Two - 15'1" (4.6m) x 11'8" (3.56m)
Fitted wardrobes, UPVC double glazed window to front.
Bathroom One
Bath with central mixer tap, tiled splashbacks, shower cubicle, wall mounted hand wash basin, WC, obscure glass UPVC double glazed window to rear, cupboard housing combi boiler, tiles to floor, radiator.
2nd Stairs and Landing
Access to bedroom three, four and bathroom two, loft access.
Bedroom Three - 14'11" (4.55m) Max x 14'1" (4.29m) Max
Two UPVC double glazed window to front and side, radiator.
Bedroom Four - 14'5" (4.39m) x 11'0" (3.35m)
UPVC double glazed window to rear, radiator.
Bathroom Two
Freestanding bath with wall mounted mixer tap, shower cubicle, hand wash basin, WC, UPVC double glazed window to front.
Annexe Kitchen/Living Room - 15'8" (4.78m) x 13'6" (4.11m)
Range of fitted units to walls, quartz worksurface over with quartz upstands, sink with mixer tap, integrated electric oven and hob with extractor fan over, integrated dishwasher, UPVC double glazed French doors opening to rear garden, radiator.
Annexe Bathroom
Bath, shower cubicle, wall mounted hand wash basin, WC, tiles to floor, obscured glass UPVC double glazed window to rear,under floor heating.
Annexe Bedroom - 13'1" (3.99m) x 10'1" (3.07m)
UPVC double glazed window to rear, under floor heating.
Outside Front
Mainly laid to lawn with path leading to front door, shrubs to border, shingled driveway providing off-road parking, carport, gated access to rear.
Rear Garden
Fully enclosed rear garden mainly laid to lawn with plants and shrubs to beds and borders, two paved patio seating areas, paved access to outside laundry room and store, wooden fence and hedge to perimeter.
Agent`s note
EPC rating C71 (Full copy available on request)
Council tax band "Business Rate" (Own enquiries should be made via Breckland District Council)
what3words /// origins.simple.sharpened
Notice
Please note we have not tested any apparatus, fixtures, fittings, or services. Interested parties must undertake their own investigation into the working order of these items. All measurements are approximate and photographs provided for guidance only.
Utilities
Electric: Mains Supply
Gas: Mains Supply
Water: Mains Supply
Sewerage: Mains Supply
Broadband: Cable
Telephone: Landline
Other Items
Heating: Oil Central Heating
Garden/Outside Space: Yes
Parking: Yes
Garage: No

Agent Statistics (Based on 1 Reviews) :