The UK's Largest Customer Review Website for the Property Industry
The UK's Largest Customer Review Website for the Property Industry
Back to Property Listings
Beauchamp Avenue, Leamington Spa
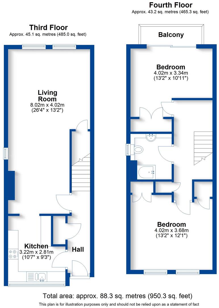
This bright and spacious top floor two bedroom duplex apartment with lift access is situated just a short walk from the town centre where there are an array of bars, restaurants and shops.
This property comprises in brief - Hallway with storage cupboard, kitchen with range of appliances, generous living/dining room with under stairs cupboard and feature electric fireplace.
To the first floor there are two well proportioned double bedrooms with fitted wardrobes and the main bedroom to the front elevation has a private balcony overlooking Clarendon Square, modern bathroom with full suite including shower over bath.
There is also the added benefit of a garage en bloc.
Kitchen - 3.22 x 2.81 (10'6" x 9'2") -
Living/Dining Room - 8.02 x 4.02 (26'3" x 13'2") -
Bedroom 1 - 4.02 x 3.68 (13'2" x 12'0") -
Bedroom 2 - 4.02 x 3.34 (13'2" x 10'11") -
Bathroom -

This property is marketed by

Sheldon Bosley Knight - Leamington Spa, Leamington Spa, CV32
5/5 Rating
(1255) reviews
Agent Statistics (Based on 1255 Reviews) :