The UK's Largest Customer Review Website for the Property Industry
The UK's Largest Customer Review Website for the Property Industry
Back to Property Listings
Adames Road, Portsmouth
We're delighted to present this spacious two-bedroom apartment, arranged over two floors and ideally located on Adames Road in Fratton.
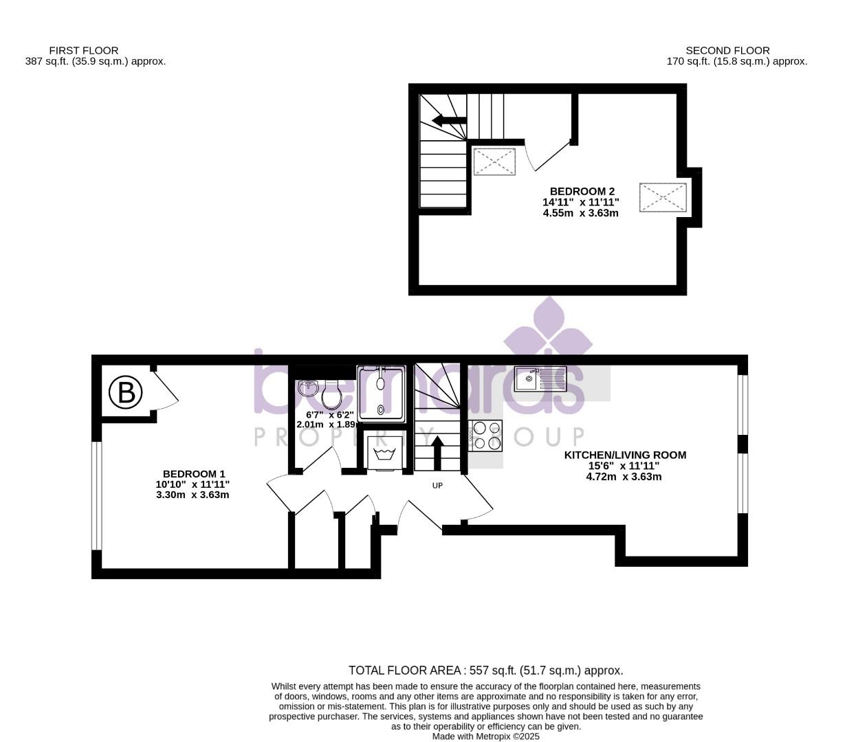
The property is accessed on the first floor and offers a bright open-plan kitchen and living area, shower room, and the first double bedroom. Upstairs, you'll find the second bedroom, providing a flexible space perfect for guests, a home office, or additional storage.
Additional benefits include double glazing, central heating, and the property is offered with no onward chain.
Perfectly positioned within walking distance of local schools, parks, shops, and excellent transport links, this home is an ideal choice for first-time buyers, downsizers, or investors seeking a strong buy-to-let opportunity.
To arrange a viewing, please contact our Portsmouth branch today on 02392 728090.
Communal Entrance -
Flat Entrance -
Kitchen/Living Room - 4.72 x 3.63 (15'5" x 11'10") -
Bathroom - 2.01 x 1.89 (6'7" x 6'2") -
Bedroom One - 3.63 x 3.30 (11'10" x 10'9") -
Bedroom Two - 4.55 x 3.63 (14'11" x 11'10") -
Leasehold Information. - Lease Length: 96 Years remaining
Ground Rent: £200 PA
Service Charge: £1,539.75
Please note Bernard's Estate agents have not checked or verified the leases, the information provided is what we have been provided with from the sellers. Your solicitor will check all of the above during the conveyancing process.
Letting Information- Portsmouth - If you are considering buying this property for buy to let purposes, we would expect to achieve £1050 PCM. This would give you 8.4% gross return based on the current asking price. If you would like any further information about lettings, what services our in house teams can offer please call your local office on 02392 696811 or email portsmouth@bernardsestates.co.uk
Mortgage Advisor - We offer financial services here at Bernards. If you would like to review your current Agreement In Principle or are yet to source a lender, we have a number of experienced Financial Advisors who will be happy to help.
Conveyancing - Choosing the right conveyancing solicitor is extremely important to ensure that you obtain an effective yet cost-efficient solution. The lure of supposedly cheaper on-line "conveyancing warehouse" style services can be very difficult to ignore but this is a route fraught with problems that we strongly urge you to avoid. A local, established and experienced conveyance will safeguard your interests and get the job done in a timely manner. Bernards can recommend several local firms of solicitors who have the necessary local knowledge and will provide a personable service. Please ask a member of our sales team for further details.
Offer Check Procedure - If you are considering making an offer for this or any other property Bernards Estate Agents are marketing, please make contact with your local office so we can verify/check your financial/Mortgage situation.
Portsmouth Council Tax - The local authority is Portsmouth City Council.
BAND : TBC
Anti-Money Laundering - Bernards Estate agents have a legal obligation to complete anti-money laundering checks. The AML check should be completed in branch. Please call the office to book an AML check if you would like to make an offer on this property. Please note the AML check includes taking a copy of the two forms of identification for each purchaser. A proof of address and proof of name document is required. Please note we cannot put forward an offer without the AML check being completed

This property is marketed by

Bernards Estate Agents - Portsmouth, Portsmouth, PO2
4.9/5 Rating
(1190) reviews
Agent Statistics (Based on 1190 Reviews) :